
Marcharse a las grandes urbes ha dejado de ser una aspiración generalizada. La tendencia, ahora, apunta justo en sentido contrario: regresar al lugar de procedencia. Así nace El Búnker, la vivienda ideada por Abez para una joven pareja que, tras pasar por Madrid y Lleida, vuelve a Los Montesinos (Alicante).
El Búnker se centra en la rehabilitación de una antigua casa de pueblo con un especial valor biográfico para sus dueños. Tras culminar ella su periodo de residencia médica y obtener él un traslado profesional a un centro cercano, optaron por reinstalarse en su localidad natal y fijar allí su hogar definitivo. En su juventud, la propiedad (entonces en manos de la abuela de ambos) acogía uno de los espacios más frecuentados por su círculo social, asociado a celebraciones y encuentros. Aunque el paso del tiempo había dejado la edificación funcionalmente obsoleta, su significado afectivo permanecía intacto. Por tal razón, reclamaron a Abez un domicilio “para la reunión, para juntarse con amigos, para que en las fiestas pudieran volver a utilizarla como lugar de disfrute”.

Mantener la casa de pueblo
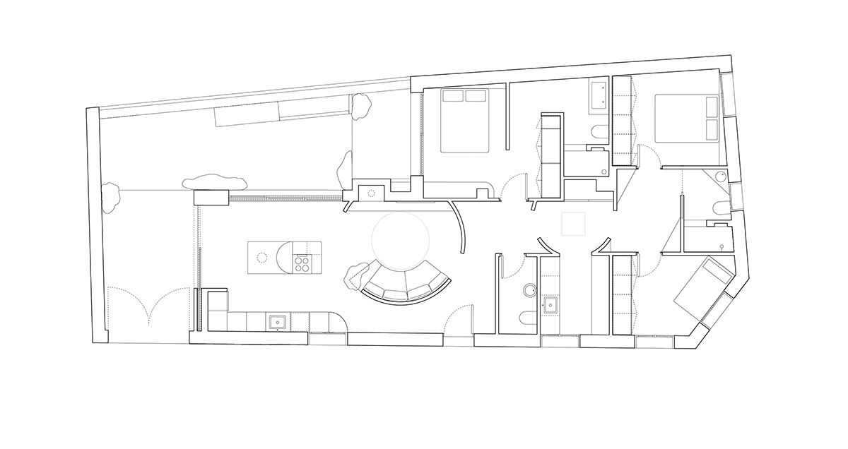
El Búnker, de 170 m², se sitúa en una parcela estrecha y alargada, encajada entre otras edificaciones. El estudio decidió mantener la tipología formal de la vivienda tradicional: conservó el zócalo de tirolesa, los cercos de mármol de las ventanas y, lo más importante, la gran puerta de garaje para recuperar la costumbre de fundir interior y espacio público. Una postura que desafía la lógica dominante de borrar lo existente para escalar metros. El estado previo, no obstante, presentaba serias patologías: la cubierta de teja estaba muy deteriorada y existían graves humedades por capilaridad, que hicieron necesaria una actuación impostergable.


Vaciado interior y saneamiento estructural
Estructuralmente, la casa permitía una transformación total. Los pilares de hormigón, embebidos en los muros de la fachada, permitieron el vaciado completo del interior. Se demolieron todos los tabiques, se levantó el suelo existente y se ejecutó un forjado sanitario para crear una cámara ventilada que evitara la reaparición de exudaciones.
Habitar sin pasillos
Cabe señalar que, condicionados por la geometría de El Búnker, el despacho afrontó uno de sus mayores retos al replantear íntegramente la distribución. En lugar de recurrir a pasillos y habitaciones cerradas, propuso una secuencia continua de espacios encadenados. “Quisimos que ese distribuidor fuera de tal manera que no supieras donde empieza o donde acaba cada estancia”, destacan.



Confort climático como premisa
Otra de las exigencias de la pareja residía en que el inmueble resultara climáticamente confortable y eficiente, ya que conocía bien sus carencias. “Actuábamos sobre una casa preexistente y, como ya habían estado ahí, aunque en otra etapa de sus vidas, sabían que tenía que ser un sitio agradable”, nos explican desde Abez.
Es en este aspecto donde el patio cobra especial relevancia. Hacia él se abrieron los espacios principales, permitiendo la entrada de luz y aire, y facilitando una ventilación cruzada natural entre el área descubierta y la fachada. Aprovechando los vientos de levante, El Búnker mantiene condiciones de confort durante la mayor parte del año sin depender de sistemas mecánicos. ” Cuanto menos se dependa de la ‘máquina’ mucho mejor”, indica la oficina. Además, la cubierta se rehizo con panel sándwich aislante con núcleo de poliuretano de 10 cm y láminas exteriores de aluminio, mejorando el comportamiento térmico, y el sistema de acondicionamiento se redujo a una bomba de calor utilizada únicamente en los periodos más extremos.


La aparición del caliche
Cuando Abez empezó a excavar el suelo de la casa, salió a la luz el caliche, que es la costra calcárea propia de la zona. En vez de volver a taparlo, decidieron dejarlo visible en algunos puntos, como una forma de recordar de dónde sale la casa y sobre qué se apoya. A partir de esa decisión, la arquitectura practicó dos grandes huecos en el tejado para que el sol descenciera hasta el nivel de la roca. Con el avance de las horas, la luz se desliza por las superficies y revela, en el interior de la vivienda, el devenir del tiempo.
La importancia de la neutralidad en El Búnker
En El Búnker, los materiales se eligen sin voluntad de protagonismo. El suelo continuo de hormigón fratasado y las paredes y los techos de yeso y gotelé funcionan como la base neutra sobre la que sobresalen, de forma selectiva, la piedra mencionada y la claridad.


Reconocerse en la casa
El principal desafío para Abez consistió en lograr que los propietarios -con una inversión total en la reforma cercana a los 130.000 euros, lo que equivale aproximadamente a 1.000 euros por metro cuadrado- llegaran a reconocer la vivienda como propia: “Que de alguna manera esas intuiciones y esa forma de vivir la casa que ellos tenían, se viera reflejada”.

Diego Abellán e Inma Jiménez, fundadores de Abez
Sobre Abez
Abez es un estudio de arquitectura establecido en Orihuela en 2020. Su fundación coincide con un regreso al lugar de origen de sus responsables, hecho que condiciona una práctica centrada en el contexto próximo y en la comprensión del entorno. El estudio está dirigido por Diego Abellán e Inma Jiménez y desarrolla proyectos de arquitectura y diseño de interiores.


Ficha técnica
Nombre del proyecto: El Búnker.
Tipo de intervención: reforma integral de vivienda existente.
Uso: vivienda unifamiliar.
Ubicación: Los Montesinos, Alicante, España.
Parcela: estrecha y alargada, entre medianeras.
Superficie total con patio: aproximadamente 170 m².
Año de finalización: 2025.
Estudio de arquitectura: Abez.
Estructura existente: hormigón armado con pilares integrados en muros de fachada.
Cubierta: panel sándwich con aislamiento térmico.
Composición de la cubierta: láminas exteriores de aluminio y núcleo de poliuretano de 10 cm.
Aperturas en cubierta: dos grandes huecos para entrada de luz natural.
Lucernario principal: fijo, doble acristalamiento, control solar y baja emisividad.
Ventilación: cruzada natural entre patio y fachada.
Protección solar en fachada: contraventanas microperforadas.
Climatización activa: bomba de calor con demanda reducida.
Estrategia climática: prioridad a sistemas pasivos.
Mobiliario e iluminación: Hay, Flos, Arasht Studio, Abez.
Fotografía: David Zarzoso.
Presupuesto total aproximado: 130.000 €.
Coste estimado por m²: 1.000 €/m².