
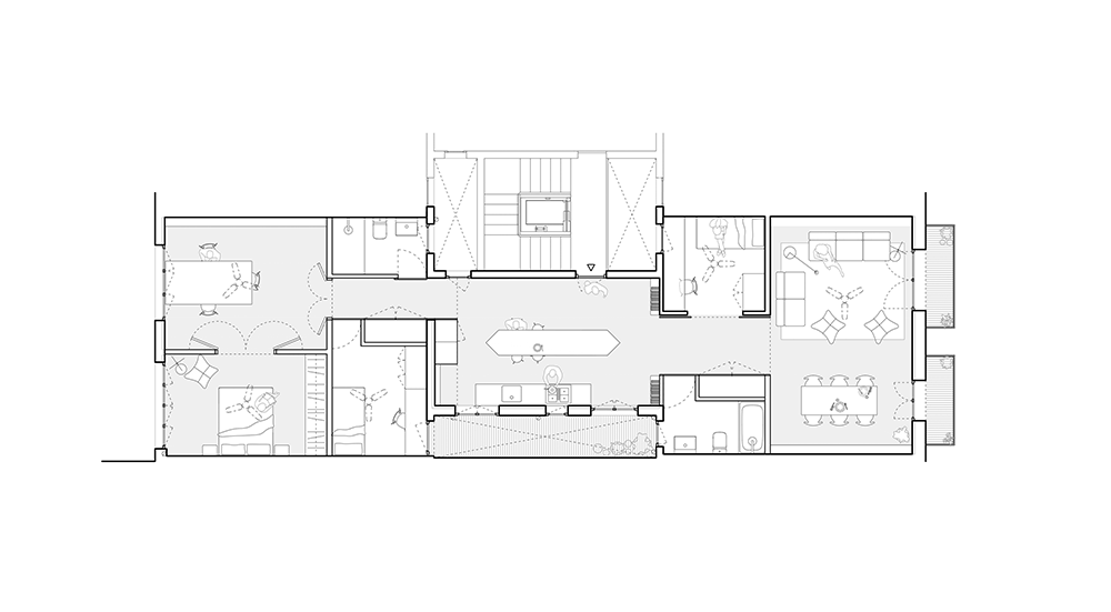
Metronom ha sido el estudio que se ha encargado de la reforma de una vivienda de 110 m² en el Eixample Izquierdo de Barcelona, atrapada durante décadas por las consecuencias de una ampliación desproporcionada realizada en los años setenta.
Aquella obra, sumada a la distribución prototípica del ensanche -estrecha, alargada y dominada por un pasillo-, había dado lugar a una casa compartimentada, sombría y sin continuidad. Frente a ello, Metronom eliminó los tabiques centrales y abrió un eje que conecta la calle Mallorca con el patio de manzana. La cocina pasó así a ocupar el centro del piso, vertebrada por una isla hecha a medida que organiza la distribución y propicia la interacción. Mientras tanto, los electrodomésticos y el almacenaje desaparecen de la vista, sepultados tras paneles uniformes.

Puertas y suelos recuperados
En las franjas intermedias se encuentran los dormitorios secundarios y los baños, espacios en los que Metronom emprendió una labor de recuperación que devolvió la relevancia a las puertas originales de madera y al pavimento hidráulico. Las primeras fueron restauradas y recolocadas, no únicamente para mantener su función práctica, sino también para convertirse en piezas que marcan la circulación y acompañan el desplazamiento por el apartamento.


En cuanto al suelo, cada baldosa fue desmontada y recompuesta, lo que permitió a Metronom configurar un diseño geométrico más sobrio, capaz de preservar la memoria del material y, al mismo tiempo, ofrecer una lectura renovada de la reforma de esta vivienda en el Eixample.
Estructura a la vista y eficiencia energética
El estudio optó por poner en valor la bóveda catalana y las vigas de acero, elementos que habían permanecido velados durante largo tiempo y que ahora se reincorporan en la lectura de la morada como parte fundamental de su memoria constructiva. También instaló ventanas con vidrio de alta eficiencia e introdujo aislamiento térmico en las fachadas, con el fin de mejorar el comportamiento energético del edificio y reducir de manera notable la demanda de climatización.


Una paleta cromática de transición
La paleta cromática acompaña este ejercicio de conciliación entre pasado y presente, ya que combina los tonos cálidos del pavimento reintegrado con una gama de grises y marrones aplicada en carpinterías, muros e incluso en la isla central de la cocina.




Sobre Metronom
Ficha Técnica
Autores: Metronom
Programa: reforma de vivienda
Superficie: 115 m²
Cliente: privado
Equipo: Maria Amat, Albert Casas, Arnau Espona, Elsa von Mallinckrodt, Ludovica di Lernia
Fotografía: Simone Marcolin
Contratista: Triflex
Fecha de finalización: junio de 2025

