Adrià Escolano y David Steegmann Mangrané nos cuentan el origen, concepción y algunas curiosidades de su último proyecto realizado en Barcelona: A table II. Ellos, que son unos auténticos entusiastas de la arquitectura, nos transmiten su satisfacción por el resultado conseguido a pesar de un presupuesto muy bajo y varias propuestas que se quedaron en papel mojado antes de la reforma definitiva.
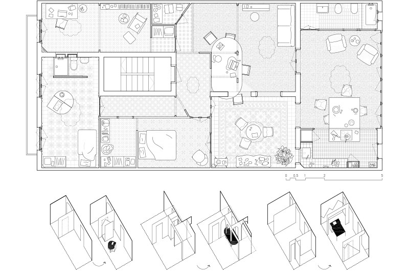
“El encargo consistía en renovar la cocina y el baño de esta vivienda de 140 m2 para una pareja”. Así es como a este par de arquitectos les llegan los grandes encargos. Consiguieron seducir a los clientes para acabar conquistando también el centro de la vivienda gracias a su uso ambiguo y a la forma poco convencional de vivir que tienen los propios inquilinos.
“Los clientes, que son las personas más altruistas que conocemos, acomodan amigos en su vivienda durante algunas temporadas. Para poder ofrecerles cierta intimidad, necesitaban equipar con un baño y una pequeña cocina una de las habitaciones que da a la calle. El piso tenía un único baño en la fachada interior. Se trata de un Principal antiguo y profundo, sin patios interiores y con un centro oscuro. Se estructura mediante una serie de habitaciones conectadas como un palacio francés, sin apenas pasillo. Aparecen ventanas interiores que conectan estancias sin ventilación exterior.” Adrià y David nos afirman que las preexistencias y los clientes son una buena parte del proyecto. Prácticamente no cambiaron la distribución del piso, se trató de realizar aperturas en los tabiques y desplazar varias puertas existentes para reubicarlas en nuevos sitios.” Comentan Adrià Escolano y David Steegmann Mangrané
“Detectamos que el mínimo común múltiple de la operación eran las superficies horizontales, aquellas que usamos para cocinar, pero también para comer”. El proyecto nace propiamente de la cocina para acabar colonizando el centro de la vivienda. Este espacio indeterminado se ocupa mediante el elemento principal del proyecto: la mesa. “Hay dos tipos de mesas en el proyecto: unos dispositivos técnicos y una mesa genérica que sirve para muchas cosas y que puedes usar des de distintos sitios. De aquí nació una reflexión: ¿Qué significa una mesa? Se trata de elevar un plano horizontal para combatir las leyes de la gravedad. La mesa es un elemento totalmente democrático, cualquier cosa puede pasar a su alrededor”.
Así es como apareció esta superficie “hiper-perenne” como elemento abstracto de brutales dimensiones, descontextualizado, que cruza diversos espacios y elementos arquitectónicos. El corazón del piso, originalmente estructurado en esvástica por piezas sin carácter ni luz, queda ocupado por una mesa de todos estos sitios igual de ambigua que las habitaciones que la rodean.
“Ha habido una fricción entre la preexistencia y la intervención. Hay una geometría que pertenece a la operación: los arcos. Existe un juego de fantasía en el que dudas de lo que es preexistente y lo que es nuevo. La mesa central es otro arco pero abatido” cuentan Adrià Escolano y David Steegmann Mangrané
Respecto a la materialidad, comentan que “el granito rosa porriño es la piedra del proyecto. Es un material que ha sido maltratado por el uso generalizado en todas las promociones de los 70 de Barcelona pero que, aislado, es bonito. También lo son todas las memorias, las huellas de los antiguos tabiques”.
Adrià Escolano y David Steegmann Mangrané nos confiesan su lucha contra la estandarización de las cocinas. “Queremos recalcar la importancia que damos a las cocinas, nos las tomamos muy en serio. Intentamos constantemente romper con los clichés. Han ido arrastrando características a lo largo del tiempo, pero es la parte que más ha cambiado de una vivienda. La cocina acaba siendo el centro neurálgico de la casa porque culturalmente lo es. Queremos luchar contra la multiplicidad de clones que ha creado la cocina modular. Es nuestra batalla. En “A Table II”, la cocina es generadora del proyecto. Es un statement, donde se ve todo, no hay puertas ni cortinas ni extractor ni mucho armario… Situaciones excepcionales hoy en día”.
“Por otro lado, tenemos los paisajes de los baños generados por la operación formal mínima que se le puede realizar a un alicatado: generar la diagonal. Además, también nos servía para ajustarnos al reducido presupuesto y alicatar lo justo”.
Por último, nos relatan la experiencia de haber realizado las fotos del proyecto cuando los clientes ya llevaban un tiempo viviendo en el piso. La reforma se llevó a cabo en dos fases y les impidió obtener las típicas imágenes de interiorismo desnudas de cualquier otro elemento. “La arquitectura acaba llena de cosas que los arquitectos no prevemos. Cuando realizamos la sesión de fotos, los clientes ya habían colocado sus muebles y nos pareció brutal la combinación”.
Adrià Escolano y David Steegmann Mangrané colaboran conjuntamente en distintos proyectos de arquitectura des de 2016. Ambos han recibido diversos premios y actualmente combinan su actividad profesional con la docencia.
Fotografías de José Hevia






