
¿Qué ocurre cuando el que diseña para otros lo hace para sí mismo? La curiosidad nos puede y nos lleva a detenernos en el apartamento de un arquitecto, específicamente el de Íñigo Palazón, uno de los cuatro integrantes del estudio Diir.
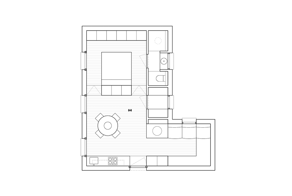
Al redactar este artículo, la primera cuestión que nos planteamos es qué resulta verdaderamente primordial en el apartamento de un arquitecto. Qué aspectos adquieren relevancia cuando se trata de crear su propio hogar. La respuesta no parece encontrarse, al menos de forma literal, en la superficie disponible, ya que la vivienda (60 m² situados en una sexta planta de Chamberí) no sobresale por sus dimensiones. En cambio, Diir concentra sus esfuerzos en generar una sensación de amplitud, entendida no como un dato numérico, sino como una cualidad espacial construida a partir de la luz, la continuidad y la funcionalidad en el uso cotidiano.

Una planta liberada en el apartamento de un arquitecto
¿Cómo llegamos a esta conclusión? Basta con revisar el estado previo del piso antes de la intervención. La vivienda, denominada Casa VA, presentaba una organización compartimentada, con estancias delimitadas que reducían tanto la entrada de luz como la flexibilidad del espacio. La reforma fue integral y supuso la supresión de prácticamente todos los tabiques existentes, conservándose únicamente un pilar central. “En ese sentido, los trabajos de albañilería fueron sencillos”, nos explica el propio Íñigo Palazón.
La importancia de la claridad
La luz, que ya estaba presente gracias a seis grandes ventanas dispuestas en tres de los lados del perímetro, dejó entonces de quedar confinada a estancias aisladas. Al liberar la planta, la claridad natural comenzó a recorrer la morada uniformemente, alcanzando zonas que antes permanecían en la penumbra.



Orden sin compartimentar
Para ordenar esa área sin volver a cerrarla, Diir decidió actuar sobre el plano horizontal. Ahora, Casa VA se estructura a partir de diferentes niveles que permiten organizar las funciones. Aunque salón, cocina, comedor y dormitorio comparten un único ámbito, se reconocen gracias a esos cambios de altura. “Recuerdo que el esquema inicial cambió numerosas veces durante los primeros acercamientos”, explica Palazón, quien señala que lo más complejo fue encontrar una distribución lógica que alcanzara la luminosidad y la amplitud buscadas.
La “pastilla” técnica de Diir
Para solucionar esa dificultad, Diir optó por aunar el baño, el lavadero y los sistemas de climatización (aire acondicionado y calefacción) en un único y compacto volumen, al que se da el nombre de “pastilla”. Al concentrar ahí todo lo que requería un tratamiento independiente, el resto de la vivienda pudo mantenerse libre.



Objetos que nacen con la casa
El mobiliario, en su mayoría, “forma parte de la propia arquitectura”, tal como apunta Íñigo Palazón. Son escasos los elementos incorporados a posteriori, pues el sofá, la cocina y los muebles de almacenaje nacen directamente de la obra. La mesa de comedor es una de las pocas piezas independientes, aunque también fue diseñada a medida por Diir.
El resto del equipamiento se resolvió con sillas Type Chair de Hay; luminarias de Santa & Cole, como la TMM, la Sylvestrina o la Cesta; una lámpara de comedor ideada por el artista Pablo Bolumar; apliques de Oluce; y varias obras de arte, entre ellas la Pendant Lamp de Forever Studio, cedida por la galería Vasto Gallery, además de una creación de Valeria Vasi, una escultura de Anton Aiguabella y pinturas de Pablo Palazuelo, Luis Feito, Eduardo Arroyo y Maru Quiñonero.




Una cocina pensada para integrarse en un apartamento de un arquitecto
Especial atención merece la cocina, configurada íntegramente con cascos de Ikea y revestida mediante panelados a medida de laminado metálico, un acabado que se utilizó también en los armarios (tanto los estándar como los realizados ex profeso) y en las puertas del baño y lavadero. Además, el despacho situó el sistema extractor en el propio plano de trabajo. “No es la mejor alternativa si se va a dar un uso constante y recurrente a los fuegos ya que evidentemente hay campanas que aportan mejor extracción, pero consideramos que este sistema cumple bien su función. En mi caso, no cocino muy regularmente por lo que antepongo una solución integrada como esta, antes que una campana tradicional de techo”, matiza Palazón.

Los materiales de esta casa reformada por Diir
La unidad del proyecto también se hace evidente en los materiales. Vemos cómo la madera de pino natural del suelo está presente en todo el inmueble, aportando calidez, en contraste con el baño, ejecutado en microcemento. Para las paredes, Diir recurrió al yeso aplicado de manera artesanal.


Ficha técnica
Nombre del proyecto: Casa VA.
Estudio responsable: Diir.
Tipología: vivienda en edificio residencial.
Programa: uso residencial.
Tipo de encargo: apartamento de un arquitecto, concretamente, Íñigo Palazón.
Ciudad: Madrid.
Barrio: Chamberí.
Ubicación: calle Vallehermoso.
Planta: sexta.
Superficie construida: 60 m².
Año del proyecto: 2025.
Intervención: reforma integral de vivienda existente.
Estrategia espacial: organización mediante juego de niveles y plataforma continua.
Iluminación natural: seis huecos repartidos en tres fachadas.
Pavimentos: madera de pino natural y microcemento en el baño.
Paramentos verticales: acabado continuo de yeso aplicado artesanalmente.
Mobiliario: integrado en la arquitectura y la mayoría diseñado a medida.
Cocina: módulos industriales revestidos con laminado metálico personalizado.
Almacenamiento: sistemas integrados con acabado metálico efecto aluminio.
Puertas interiores: carpinterías de madera con cerco oculto y revestimiento metálico.
Climatización: sistema integrado en falso techo del núcleo servicial.
Coste aproximado: entre 1.200 y 1.400 €/m², incluyendo mobiliario integrado.
Calefacción: radiadores dispuestos en fachada.
Fotografía: Luis Díaz Díaz.