La casa flotante de i29 Architects es parte de Schoonschip, un nuevo pueblo flotable de 46 hogares que tiene como objetivo crear la comunidad sobre el agua más sostenible de Europa.
Diseñada dentro del plan urbano Space & Matter donde más de 100 residentes se mudaron y revitalizaron un canal en desuso. La ubicación tiene un fuerte pasado industrial, pero hoy en día es una de las partes más activas y transformadoras de Ámsterdam. El nuevo vecindario flotante está destinado a ser un ecosistema urbano integrado en el tejido de la ciudad, aprovechando al máximo la energía ambiental y el agua para su uso y reutilización, reciclando nutrientes y minimizando los desechos, además de crear espacio para la biodiversidad natural.

El sitio es energéticamente autosuficiente, emplea prácticas de construcción circulares y sirve como escaparate para una vida sostenible. Un muelle inteligente conecta los 46 hogares flotantes entre sí. En la superficie superior, el embarcadero es un conector social donde la gente se reune. Debajo de la superficie, el embarcadero es un conector funcional y sostenible con todas las líneas de energía, desechos y agua.

Dentro de la red inteligente del pueblo y los límites dados de cada parcela de agua, cada casa puede tener una arquitectura e interiorismo únicos. A todos los habitantes se les permitió elegir su propio arquitecto preferido.


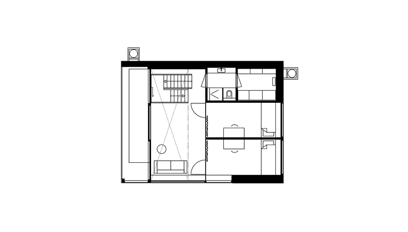
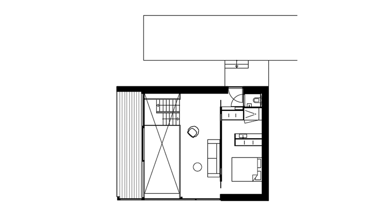
El cliente de i29 Architects les desafió a diseñar una casa que maximizara el espacio dentro de los límites de volumen de la parcela, que tuviera una forma de casa típica pero que a la vez tuviera espacios sorprendentes. El volumen flotante tiene un techo inclinado, pero la coronación del techo está en diagonal en el plano del piso, lo que brinda una optimización del espacio utilizable en el interior y un diseño arquitectónico abierto en el exterior.

Para i29, la arquitectura y los diseños de interiores siempre están entrelazados y conectados en cada nivel para crear una experiencia clara y unificada. El diseño exterior de la casa flotante es el resultado de un estudio del espacio dentro del interior y viceversa. Todas las áreas están en conexión abierta con el atrio que comprende tres pisos. El diseño se amplía con una unión de dos niveles a una terraza con el suelo justo encima del nivel del agua.

El interior y la fachada juegan con las vistas del exterior. Las vistas aparecen y desaparecen mientras se mueve por la casa. El sótano ofrece vistas directas al nivel del agua, la sala de estar solo ofrece una vista de los alrededores cuando se sienta en el salón y la cocina. En el piso superior hay vistas directas hacia el lado sur y norte del canal. En el último piso, un corte en la cubierta crea una terraza abierta con vistas hacia el puerto en el oeste.


Esta casa flotante es ecológica y extremadamente eficiente desde el punto de vista energético, además ocupa un espacio reducido. La sostenibilidad llega incluso a un nivel superior con la implementación en la red inteligente de la aldea flotante. La energía puede ser aún más valiosa cuando la compartes.

——
Ficha técnica
Cliente: privado
Diseño: i29 Architects
Objeto: Schoonschip Kavel 03
Plan urbano: Space & Matter
Asesores de sostenibilidad: Metabolic
Gestión: Gemeente Amsterdam
Contratista: Hagoort bouw
Constructor de interiores: Simon Sintenie
Fotos: i29 / Ewout Huibers
———

Imagen superior: Nivel 1

Imagen superior: Nivel 2

Imagen superior: Nivel 3

Imagen superior: Sección
