House Oskar: casa en Bohemia oculta entre árboles y ruinas

En Kamenná Lhota, pueblo ubicado al sur de la República Checa, una casa blanca se deja intuir entre árboles frondosos y los restos de un granero del siglo XVIII. Su presencia es discreta, casi silenciosa.

La historia de House Oskar empieza con un deseo muy concreto y poco frecuente: encontrar un sitio para vivir cerca del paisaje, no encima de él. El arquitecto Jan Žaloudek y su pareja, la escritora Jolanta Trojak, llevaban tiempo soñando con una morada donde poder trabajar, descansar y criar a sus hijos sin tener que elegir entre naturaleza e intimidad. Cuando encontraron este terreno -antiguo jardín de un château- supieron que ese era el lugar idóneo para ellos.

House Oskar: casa en Bohemia oculta entre árboles y ruinas

House Oskar se construyó con mucho cuidado y sin prisas. Desde fuera, parece una casa de campo más: tejado a dos aguas, estuco blanco, proporciones comedidas. Pero al acercarse, se empiezan a apreciar los detalles. El gran ventanal circular que da al sur, las entradas en forma de nicho, las sombras que dibujan los listones de madera en la fachada. Todo está pensado al dedillo.

House Oskar: casa en Bohemia oculta entre árboles y ruinas

Vivir con lo justo, sin que falte nada en House Oskar

Por dentro, el ambiente cambia. El techo del salón se eleva como una bóveda, con más de siete metros de altura. La cocina, colocada justo en el centro, está hecha de granito rosado y recuerda -por su forma, por su presencia- a un altar. A un lado, una talla antigua de la Virgen observa la mesa de roble donde se come cada día. Al otro, un sofá largo desde el que se ve el huerto, el granero y el cielo.

House Oskar: casa en Bohemia oculta entre árboles y ruinasHouse Oskar: casa en Bohemia oculta entre árboles y ruinas

La planta baja acoge las estancias principales: cocina, salón, dormitorio, baño y zonas técnicas. En cambio, la parte superior es un espacio más recogido, con una segunda habitación y un estudio bajo el tejado, que actúa como un pequeño refugio blanco donde leer o escribir sin distracciones.

House Oskar: casa en Bohemia oculta entre árboles y ruinasHouse Oskar: casa en Bohemia oculta entre árboles y ruinas

Objetos que construyen una historia

Todo, desde los muebles hasta la elección de las lámparas, ha sido confeccionado o seleccionado con mimo. El inmueble está lleno de objetos que cuentan historias: esculturas checas, piezas africanas, arte contemporáneo, libros, alfombras, cerámica, madera. Y sin embargo, no hay sensación de acumulación. Cada cosa parece estar en su sitio.

House Oskar: casa en Bohemia oculta entre árboles y ruinasHouse Oskar: casa en Bohemia oculta entre árboles y ruinas

House Oskar, un hogar que se abre a otros tiempos

Aunque es su hogar, Jan y Jolanta han querido que House Oskar no se cierre solo a ellos. La idea es abrir sus puertas de vez en cuando: acoger a artistas en residencia, celebrar encuentros, organizar talleres. Convertirla en un lugar donde pasen cosas. Donde la vida cotidiana se mezcle con la creación, sin separar una cosa de la otra.

House Oskar: casa en Bohemia oculta entre árboles y ruinas

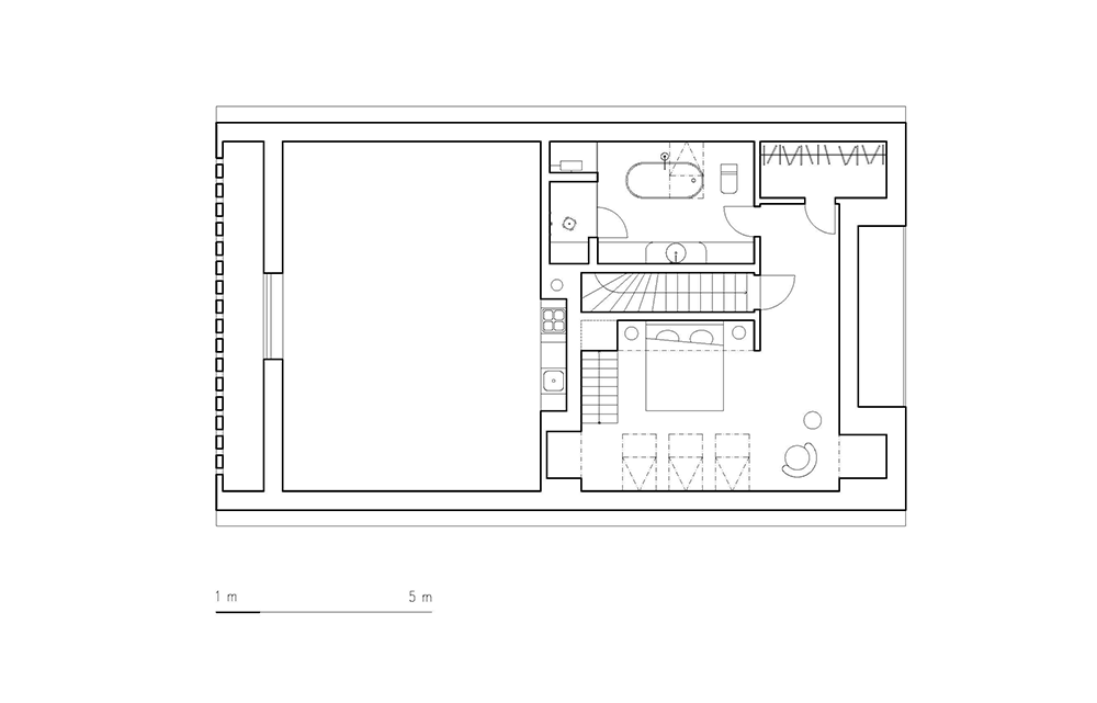
Por un lado, plano de la planta superior

House Oskar: casa en Bohemia oculta entre árboles y ruinas

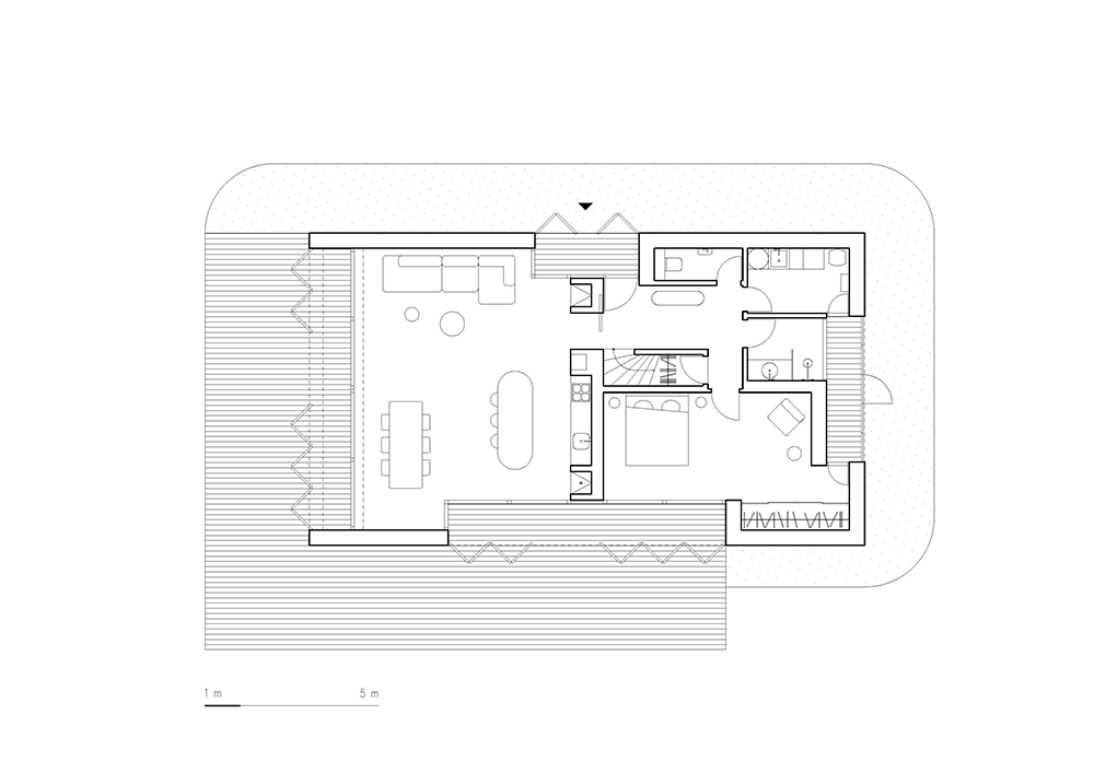
Por otro lado, plano de la planta baja

Ficha técnica de House Oskar

Estudio: Jan Žaloudek Architekt.
Autor: Jan Žaloudek.
Equipo de diseño: Jan Žaloudek y Jolanta Trojak.
Ubicación: Kamenná Lhota, 391 33 Borotín (República Checa).
Año de finalización del proyecto: 2025.
Superficie construida: 180 m².
Superficie útil: 154 m².
Tamaño de la parcela: 8.504 m².
Presupuesto estimado: 750.000 €.
Cliente: Jan Žaloudek y Jolanta Trojak.

Créditos fotográficos: BoysPlayNice.
Colaboradores y proveedores:
– Proyecto técnico: Projekty S+S (Jana Tůmová).
– Paisajismo: Atelier Rouge (Jitka Tomsová).