
Dime para quién trabajas y te diré cómo diseñas. Montoliu Hernández actualizó Casa Cirilo teniendo muy presente que su cliente encuentra en los fogones el preludio de uno de sus hábitos más disfrutados: ejercer como anfitrión.
Ubicada en un edificio de 1920 en el Ensanche valenciano, Casa Cirilo se había ido desdibujando hasta convertirse en una sombra de sí misma. Las sucesivas reformas eliminaron elementos característicos, como los suelos hidráulicos, pero no alteraron una estructura muy compartimentada que relegaba estancias interiores sin luz natural ni ventilación adecuada. Con esas condiciones, Montoliu Hernández vio claro que la cocina tenía que ser la gran protagonista de la relectura. Un lugar donde quien elabora recetas no se aísla, sino que participa en las conversaciones y en la vida del salón.

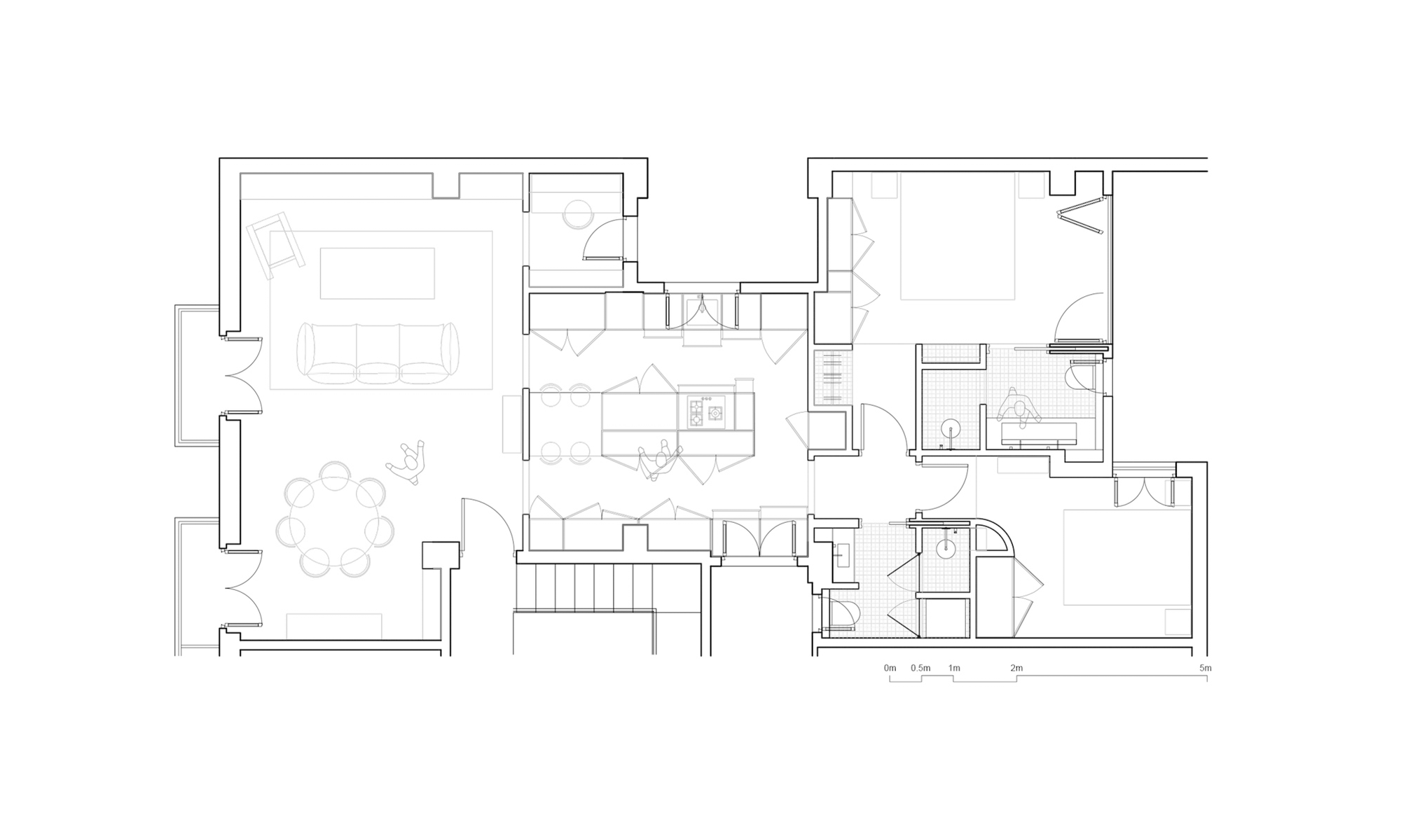
De la fragmentación a un espacio continuo
El estudio le dio la vuelta a Casa Cirilo: de casa fragmentada a secuencia fluida de espacios. Para ello, dividió la planta en tres franjas, con la zona culinaria en el medio y con la firme intención de que el resto de la morada girase a su alrededor. Así, la cocina dejó de ser solo cocina. Ahora organiza el movimiento dentro del apartamento y conecta cada una de sus partes. Los dormitorios –uno principal con baño en suite y otro de invitados con baño independiente, ambos orientados al patio interior– comparten un único acceso, de forma que pueden aislarse y mantener la privacidad cuando convenga.


Bóvedas que sustituyen al pasillo
Otra de las decisiones más importantes y llamativas de Montoliu Hernández fue introducir una serie de arcos que dan lugar a bóvedas de cañón. Esto posibilitó que el pasillo desapareciera por completo y que la circulación se integrara en los espacios. Cada bóveda acoge un uso –trabajo, cocina y zona de noche–, pero son las curvas las que aportan mayor orden, profundidad y luz. También cambian la acústica, fundamental en un hogar donde el espacio coquinario suele ser el más concurrido.




Decisiones materiales
El proyecto trabajó con pocos materiales: parqué de roble natural, tonos arena –en pintura, mortero de arcilla y lacados– y mármol Rojo Alicante, que se reservó para la cocina y el dormitorio principal. Además, Montoliu Hernandez empleó un porcelánico de 6 × 6 cm que, más allá de revestir, sirvió como unidad de medida para construir toda la geometría de Casa Cirilo. Paredes y techos se ajustaron para evitar cortes y, en obra, se prescindió del metro y el láser en favor de una regla artesanal formada por 20 piezas. Por último, cabe destacar que el despacho mantuvo el forjado original de bovedilla y vigueta de madera, presente en el salón-comedor.

Ficha técnica
Proyecto: Casa Cirilo.
Estudio: Montoliu Hernandez.
Autor: Juan Montoliu Hernández.
Ubicación: Valencia, España.
Año de finalización: 2025.
Superficie construida: 101 m².
Superficie útil: 78 m².
Créditos fotográficos: Adrián Mora Maroto.
Marcas: Cassina, Flos, Grespania, Hay, Ideal Lux, Ingo Maurer, Muuto, Vitra.