Re House es el último proyecto de Azab, se trata de la reforma de una casa agrícola en Bilbao donde se rehace una vivienda familiar para convertirla en dos. Un proyecto que destaca por su ajustado presupuesto, su gran funcionalidad y los pequeños detalles estéticos que la dotan de una enorme personalidad.
Situada a las afueras de Bilbao, en una zona donde se mezcla lo rural y lo urbano, el estudio bilbaíno Azab recibe el encargo de crear dos viviendas a partir de una. El punto de partida desde donde empezar a trabajar, es una casa rural construida en los años 80 con dos plantas donde la planta baja es un almacén agrícola. Los arquitectos tienen que diseñar una vivienda para una pareja que se dedica al cultivo del campo y otra para su hija mayor que teletrabaja en el mundo de la tutoría laboral. Con un presupuesto de solo 680 €/m2, reforman por completo el espacio y crean dos residencias totalmente independientes.

Imágenes superiores: Fachada de Re House de los arquitectos bilbaínos Azab




Imágenes superiores: planta primera de Re House
La planta superior de 101m2, que ocupa la hija mayor, es una vivienda que se configura sin jerarquías -alrededor de la cocina y el acceso de las escaleras- se distribuye en 6 estancias iguales y dos cuartos de baño.
Para conseguir que la parte central –escaleras y cocina– disponga de luz natural, se trabaja con unas mamparas de madera de pino lacada con vidrios translucidos rayados. Además esta parte central consigue luz cential extra desde los dos lucernarios que hay en la cubierta.



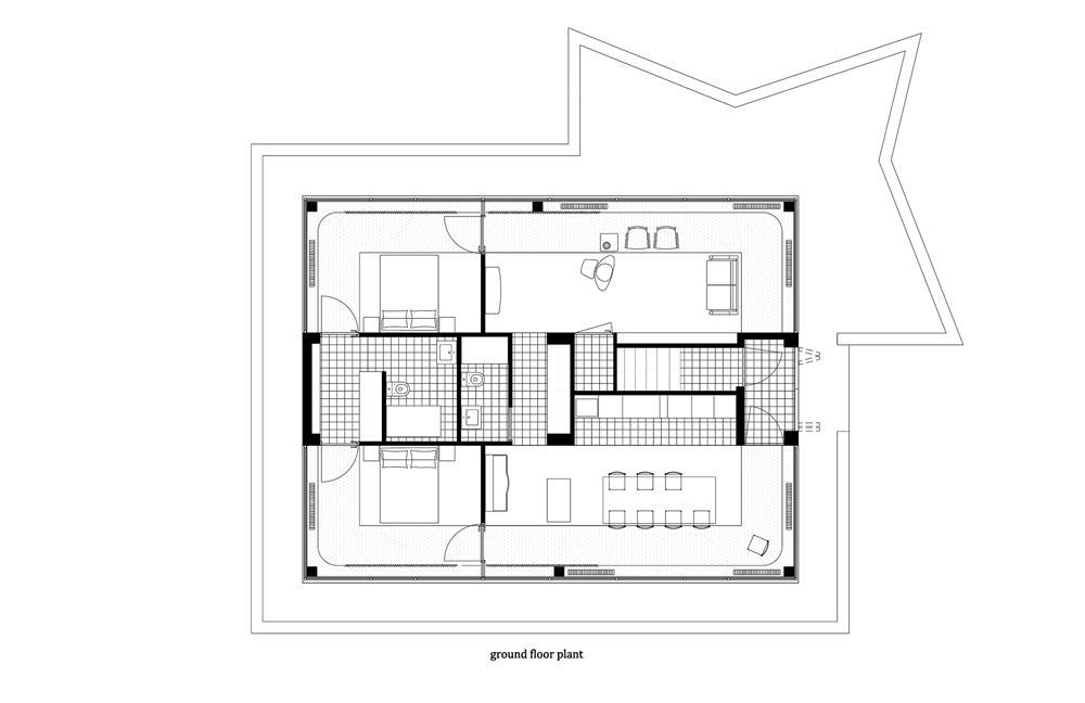
Imágenes superiores: planta baja de Re House
Por otro lado, la planta baja, con una superficie útil de 110m2, se destina a la residencia de los padres ya que por su edad es más cómoda (no hay que subir escaleras) y además tiene una conexión directa con la parcela que la rodea. El programa que Azab aplica en esta plana se compone de cocina-comedor, dos dormitorios dobles, vestidor, dos baños y salón.
Enormes ventanas, que recorren todo el perímetro, hacen que toda esta planta disfrute de gran cantidad de luz natural y de una integración total con el paisaje por la sensación de continuidad con exterior.

Imagen superior: Escaleras centrales que se mantienen de la casa original

Imagen superior: Fachada principal con la puerta doble de entrada camuflad con el dibujo de la pared
La distribución de las 2 viviendas-plantas, que los arquitectos Azab han proyectado, gira en torno a un núcleo central donde se sitúa el hueco de la escalera y la cocina. Una escalera central con friso en madera oscura que es de los pocos elementos que el estudio Azab ha mantenido de la casa inicial, una huella y un guiño que conecta con el pasado de la primera casa.
El pavimento principal de toda la vivienda es linóleo -un material natural de origen vegetal- en dos colores, azul y crema, que refuerza la idea contrarios de las dos plantas. En la cocina de planta baja hay una pequeña franja de gres granate y también en el hall de acceso a las dos viviendas con una combinación de gres granate y turquesa.
El sistema de climatización usado es una caldera de condensación que da servicio a una red de radiadores eficientes de baja temperatura

Una reforma donde todo se actualiza menos la cubierta, la estructura portante, la cimentación y la red de saneamiento.
Azab deja a la vista la estructura de hormigón de la edificación original, como suele ser habitual en sus trabajos de reforma. A la fachada le aplican un SATE (sistema aislamiento térmico exterior) que mejora el comportamiento de la fachada original. También tiene un revestimiento acrílico de dos capas y colores donde se dibujan unos rombos ornamentales.
Las bajantes, muy presentes en los alzados, se resuelven con unos tubos de metacrilato que muestran las tripas de la recogida de lluvia.


——
Re House de Azab arquitectos
Ubicación Loiu, Bizkaia
Cliente Familia Llona-Aurrekoetxea
Fecha 2018-2020
Arquitectos Azab: Cristina Acha, Miguel Zaballa, Ane Arce, Iñigo Berasategui
Contratista Azab + Alur
Fotografías Luis Díaz Díaz
+ www.azab.es
——
