
En una tranquila zona de Chamberí, uno de los barrios más cotizados del centro de Madrid, Estudio Diir transforma un antiguo y oscuro almacén en una vivienda práctica y luminosa, magnificada por el grácil juego de los espejos.
La pureza del minimalismo da nueva vida a un espacio, que ha pasado del abandono al esplendor. No era fácil diseñar un hogar agradable y elegante a partir de un local en desuso a pie de calle, con todas sus ventanas orientadas al patio interior de un bloque de seis alturas. Pero el equipo de arquitectos de Estudio Diir acertó al ejecutar esta reforma siendo fiel al concepto de ‘menos es más’ para lograr un espacio interior en armonía y versátil, que seduce por sus estancias pasantes de superficies níveas, maximizadas por un efecto de perspectiva infinita.


Esta casa renovada, que luce hoy con sus 80 m2 bien aprovechados, era originalmente “un bajo comercial en estado de abandono. En su día funcionó como almacén, pero nunca como vivienda. Además, tenía una serie de dificultades técnicas importantes. Entre ellas, la diferencia de cotas y excesiva compartimentación de los espacios”, cuenta Iñigo Palazón, uno de los cuatro fundadores de Estudio Diir.


Estudio Diir crea una vivienda experimental de estilo minimalista
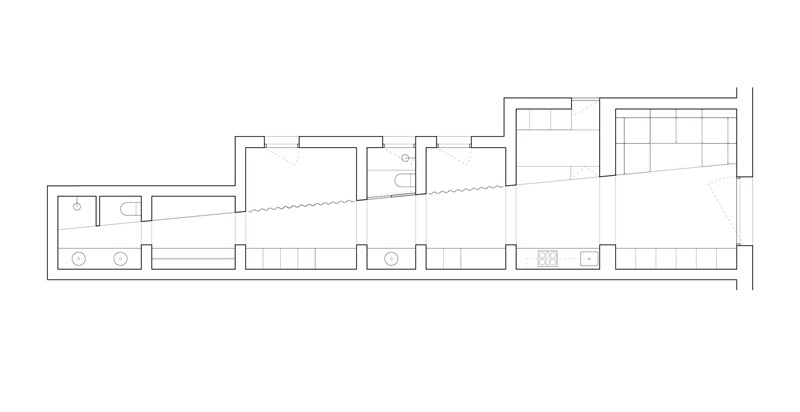
Cuando los arquitectos eliminaron los tabiques del antiguo almacén, definieron una distribución de estancias interconectadas en serie. El objetivo era conseguir una planta flexible, capaz de convertirse en un único espacio polivalente y, al mismo tiempo, de dividirse en diferentes ambientes con entidad propia. “La complejidad que ofrecía un esquema tan longitudinal fue usada como virtud. Se enfatizó esta característica con el fin de plantear una propuesta disruptiva, una nueva forma de habitar. A nivel técnico, las limitaciones estructurales que el espacio poseía también fueron usadas para remar a favor del proyecto, y guiar cada decisión hacia nuestro planteamiento conceptual”, afirma Palazón.




Las estancias presentan un diseño de proporciones simétricas, donde el paso de una a otra se produce a través de huecos que se van ensanchando progresivamente a medida que se aproximan a la puerta de entrada, generando la ilusión de una perspectiva infinita. Una sucesión que arranca en la parte más privada de la casa, el baño principal. Y culmina en la más pública, el salón, donde se encuentra el acceso principal. Y es que la vivienda dispone de doble acceso. “Por un lado, es posible entrar a través de la puerta traslúcida que da directamente a la calle, fabricada en este material para aprovechar la luz natural y, a la vez, para mantener la privacidad. Y el segundo acceso se realiza desde el interior del portal y nos lleva directamente al espacio de la cocina-comedor”, detalla Palazón.


Perspectiva infinita, juego de espejos y tonos crudos definen unos interiores fluidos y en armonía
Los cercos de granito monumentalizan la transición entre estancias, a la vez que introducen el toque ornamental en unos interiores unificados por un blanco níveo, que aporta luminosidad a un hogar pulcramente organizado. El perímetro se reserva para el mobiliario, que sirve de almacenaje y aloja las instalaciones, con un sutil diseño de líneas limpias, casi invisible. El frente de la cocina y los armarios del comedor obedecen a la sobriedad del aluminio anodizado. En cambio, los tonos claros se apoderan de la encimera de piedra natural de la cocina y del alicatado de los baños.

Uno de los distintivos más especiales de esta vivienda es el conjunto de superficies con acabado de espejo, que logra un sorprendente efecto de amplitud. Por ejemplo, “todas las puertas se revisten en su totalidad de espejo para enfatizar la sensación de perspectiva infinita”, explica Palazón. Estratégicamente colocados, los espejos permiten reflejar la luz y propagarla por todo el interior, elevando la sensación de confort en este nuevo hogar concebido a gusto de “una pareja joven y apasionada por el mundo del diseño. Buscaban una vivienda que saliera de los estereotipos tradicionales. Ya de por sí, una casa en planta baja posee ciertos aspectos peculiares, pero quisieron sumarle todavía algo más de singularidad”, asegura Palazón. Y afirma que esta actitud les ha impulsado a crear: “una vivienda completamente experimental, donde el funcionamiento de cada espacio va más allá de lo puramente establecido”.

—–
Créditos Casa M60
Arquitectura: estudio DIIR
Lugar: Madrid
Fecha finalización: 2024
Superficie construida: 80 m2
Promotor: Privado
Programa: Residencial
Fotografía: Luis Díaz Díaz