
Los arquitectos de Dodds Estudio ejecutan el proyecto de reforma de una oscura vivienda del centro de Buenos Aires, maximizando la entrada de luz a través de la iluminación cenital y la generación de espacios interconectados.
En la capital de Argentina, es habitual encontrar edificaciones que forman parte de un régimen de copropiedad y están incluidas en el mismo lote. Se las conoce con el nombre de Propiedad Horizontal (PH) y es, en este contexto, donde los arquitectos de Dodds Estudio acaban de realizar una de sus últimas intervenciones. La reforma ha permitido mejorar la iluminación natural en los interiores, un problema que afecta frecuentemente a este tipo de viviendas. Más aún si, como en este caso, las habitaciones del hogar ventilan a través de un patio cubierto.

El acceso a esta casa de 86 m2 se realiza a través de una blanca puerta de estilo minimalista, camuflada entre dos locales de una de las calles que atraviesan el centro de Buenos Aires. Se trata del mismo pasaje que conduce a Espacio B (una nave, donde conviven en armonía los usos de oficina y vivienda, que también ha sido reformada por Dodds Estudio).


Vivienda PH reformada con luz, colores claros y texturas amaderadas
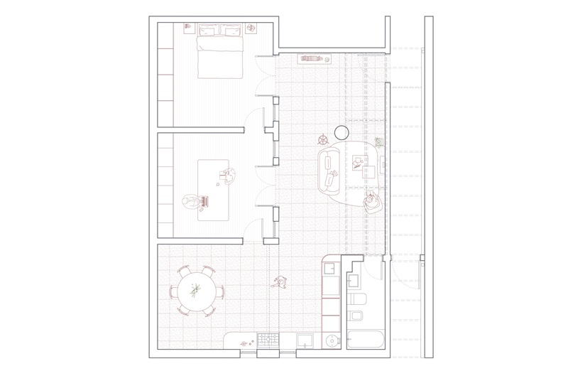
La vivienda se organiza en una sola planta con una distribución que favorece la circulación fluida entre las distintas estancias. Los muros, que compartimentaban en exceso el espacio, se derribaron para crear una nueva zona de día unificada y más amplia. Para ello, se reforzó la construcción existente con una estructura metálica vista, que los arquitectos han pintado en un color verde pastel, consiguiendo una divertida estética industrial.



La cerámica de los techos también se dejó al descubierto a fin de revalorizar la textura original de las bovedillas de ladrillo que adornan la zona de la cocina-comedor, que ahora luce abierta al salón. A fin de potenciar la luz y la ventilación, tan necesarias en esta vivienda, se ha renovado de manera radical el techo del antiguo patio cubierto, optando por uno nuevo de aluminio y vidrio esmerilado que filtra los rayos del sol. Además, el equipo ha incluido un sistema de tensores que posibilitan la abertura de la cubierta en distintas direcciones. Tanto hacia el cielo, como hacia el lateral para garantizar la ventilación incluso en los días lluviosos.

El blanco de las paredes y los pavimentos aporta unidad a la zona común y eleva la sensación de confort
Las impolutas paredes níveas realzan la luminosidad de la vivienda. Al igual que el granito blanco utilizado para el suelo de baldosas en la zona de día, un material bastante clásico en este tipo de propiedades. En el estudio y el dormitorio, los arquitectos han optado por suelos vílicos de color crema, que simulan la textura de la madera. Estas dos habitaciones, que completan el programa de la vivienda, tienen unas amplias puertas de suelo a techo que sorprenden por la bella carpintería de cedro, que el equipo ha recuperado de la preexistencia. Asimismo, unas coquetas ventanas con forma de arco, pintadas en el mismo color verde pastel que la estructura metálica, refuerzan la conexión de ambas estancias con el salón y dejan pasar una mayor cantidad de luz natural.



El cálido color de las superficies que imitan la madera también está presente en el frente de la encimera y el módulo del baño, situado en el rincón que une el salón y la cocina. Su envolvente curva está diseñada a medida, generando una suave transición e introduciendo un acento chic, que aporta un toque de originalidad a los interiores. Un proyecto de renovación, donde Dodds Estudio ha logrado mejorar las condiciones espaciales de la vivienda y, a la vez, respetar la arquitectura original de esta Propiedad Horizontal tan típica de Buenos Aires.

—–
Créditos de Vivienda PH Boris:
Arquitectura: Dodds Estudio
Equipo: Sofía Botto González, Candela Cwi, Nina Dodds, Lucía Mariotto
Ubicación: Buenos Aires, Argentina
Año de finalización: 2024
Superficie: 86 m2
Uso: Vivienda
Fotografía: Federico Cairoli
Colaboradores:
Proyecto iluminación: Loop
Proyecto y materialización mobiliario: Dodds + Contuco
Marcas de artefactos, griferías, revestimientos: IMDI, Hidromet, AB Marmolería, Roca, Moltrasio