
CNN o Patio es la primera colaboración arquitectónica entre Burr y Guillermo Trapiello. Es un espacio experimental en Carabanchel creado para la artista Johanna Jaskowska.
CNM o también llamado Patio es el quinto trabajo dentro de la iniciativa “Elements for Industrial Recovery” de Burr, una estrategia para revitalizar naves industriales en desuso y evitar su demolición. La artista Johanna Jaskowska, propietaria de este espacio en Carabanchel, Madrid, necesitaba un lugar que combinara un programa público y productivo, con áreas privadas para el descanso.

CNM o espacio Patio en barrio de Carabanchel de Madrid
Este proyecto se articula en torno a un patio-jardín que hace que nos olvidemos de que estamos en un contexto urbano. Los autores lo han denominado con el acrónimo CNM, Cabo Nicolás Mur, que es la calle donde se ubica, mientras su propietaria lo llama Patio, por el protagonismo que tiene este.

Un buen tándem, una mezcla de arquitectura y diseño industrial
Aunque Burr y Guillermo Trapiello ya habían trabajado conjuntamente en el diseño de exposiciones, esta es su primera incursión conjunta en la arquitectura. La colaboración ha sido muy fructífera gracias a la combinación de sus habilidades en arquitectura y diseño industrial. “Pensamos que era un buen tándem, una mezcla de arquitectura y diseño industrial. Nos ha resultado fácil la colaboración porque nuestros trabajos se alinean en la búsqueda de una nueva identidad industrial, desde la experimentación, la investigación y el juego. Llevábamos mucho tiempo queriendo hacer esto”, comentan los autores.


Mecanismos, espejos, transparencias y filtros de luz
CNM va más allá de ser un estudio-taller para Johanna Jaskowska; es un espacio experimental para artistas, diseñadores y mentes creativas, enfocado en la mezcla de herramientas y medios innovadores. Desde el principio, los autores buscaron un diálogo con la obra de Johanna, que a menudo incluye elementos de ficción y surrealismo, explorando temas de identidad e interacción entre lo humano y lo tecnológico. Esto se tradujo en el uso de mecanismos, espejos, transparencias y filtros de luz.



Una cubierta perforada estratégicamente para la iluminación
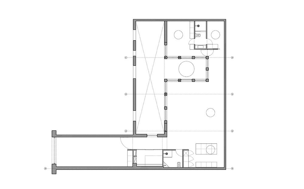
El proyecto se caracteriza por un muro exterior en forma de arquería de piedra, acabado con un mortero rugoso. Este muro presenta huecos regulares con vidrios fijos y puertas correderas. La cubierta, visible desde cualquier punto de la nave y perforada estratégicamente para la iluminación, refuerza la continuidad espacial.
La interacción entre la arquería y la cubierta continua crea espacios interconectados, donde interior y exterior se fusionan. Dos volúmenes destacan en el diseño: un volumen amarillo que marca la entrada y un volumen de madera que cierra el recorrido, albergando baños y armarios. Este diseño armoniza elementos estructurales y funcionales.


Una mezcla de elementos preexistentes y nuevos
La reforma abarca una superficie total de 202 m2, incluyendo un jardín exterior de 43 m2 y un patio de 12 m2. La estructura metálica de la nave principal se mantuvo, reemplazando la cubierta para incorporar óculos circulares y muros en la zona de acceso, cuyos acabados combinan elementos preexistentes y nuevos. Estas claraboyas se controlan con interruptores distribuidos por el espacio, facilitando la ventilación natural y la limpieza.
La cocina se adaptó a partir de una serie de Ikea, con tiradores, frentes laterales y rodapiés modificados, y una encimera diseñada a medida. El patio, concebido como un jardín de té japonés, está diseñado más para ser contemplado que habitado.

El espacio bajo el óculo de la cubierta actúa como zona de estar y transición entre las áreas públicas y privadas, creando una interesante ambigüedad entre interior y exterior. Uno de los baños conecta dos espacios privados en el fondo de la nave con puertas camufladas que parecen armarios. Este efecto de ocultamiento se repite en otras zonas, usando espejos para difuminar la presencia de las puertas.

El techo alcanza en algunas zonas los 4,3 metros
Todo el suelo es de hormigón pulido y la climatización se ha resuelto mediante aerotermia con suelo radiante. La sensación de amplitud se consigue fundamentalmente por la gran altura del techo, que en algunas zonas alcanza los 4,3 metros. El coste aproximado total de la reforma fue de 1.000 € por metro cuadrado.

Colaboración interdisciplinaria con resultados innovadores
CNM es un claro ejemplo de cómo la colaboración interdisciplinaria puede generar resultados innovadores y funcionales. La transformación de un lugar industrial cerrado en un espacio lleno de luz, con ventilación y con zonas exteriores convierten a este trabajo en un habitáculo polivalente perfecto para las necesidades de Johanna.
Fotografías: Maru Serrano