
En el centro histórico de la villa de Ansião (Portugal), en un terreno ligeramente inclinado, se erige Casa Âmago. Un proyecto de Bruno Dias enfocado en tratar de brindar la perfecta coordinación entre lo que se crea y la simbiosis de lo que ofrecen los entornos.
Los dueños de Casa Âmago, Bruno Dias y su esposa, observaron que la parcela consistía en dos casitas en ruinas. Sin ningún interés arquitectónico, por lo que reformarlas no era una alternativa. Así pues, se optó por levantar un edificio de una sola planta, con un gran patio central. Desde el que se despliega la temática hacia el resto de estancias. Es más, de ahí viene su nombre. Âmago significa médula, núcleo. Un punto focal para compartir 765 m² de nobleza y autenticidad. Cualidades repartidas a partes iguales entre madera de pino, piedra y vidrio. Para no dar lugar a imitación alguna.

El primer vistazo de Casa Âmago no revela lo que hay más allá del muro y la puerta. Otra propuesta no estaría en armonía con el entorno. Es decir, para Bruno Dias resultaba imposible planificar un edificio contemporáneo, sin conexión con los edificios vecinos.
Así, la presencia de la madera en la mayoría de los espacios de Casa Âmago, les da un toque único y personal, fluyendo hacia el área vertebral, el patio central. Más concretamente, los cinco materiales principales utilizados en este proyecto de Bruno Dias han sido madera de pino, hierro galvanizado, hormigón, piedra y vidrio.
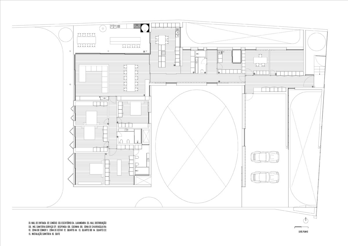
La entrada principal de Casa Âmago se encuentra orientada al oriente. Ya sea que se llegue a pie o en coche, el hall principal lleva directamente al área social, sala, cocina y área de barbacoa.
A lo largo de este eje se encuentran las áreas de cuartos técnicos y de servicio. Como el gimnasio, el estudio, la lavandería, un baño de servicio y un lavadero. Todos estos espacios de Casa Âmago conducen a un patio en el lado norte, lo que permite la entrada de luz y ventilación natural.

Por otra parte, en la sala de estar ideada por Bruno Dias se encuentra un mueble diseñado específicamente para este lugar, que oculta los aposentos privados, garantizando así la privacidad de los usuarios.

Mientras, el área social proyectada por Bruno Dias, ubicada en el lado oeste y hacia un jardín, trae la luz natural de la tarde y las primeras horas de la noche. El momento en que las personas disfrutan más del espacio creado en Casa Âmago.

Tampoco hay que olvidar que dos de los dormitorios y la suite de Casa Âmago dan al jardín, hacia el oeste.

Con todo, el salón es un espacio esencial en el proyecto de Bruno Dias, ya que brinda una interacción social privilegiada con los amigos.

Casa Âmago define una construcción basada en un solo nivel. Como el propio arquitecto explica, “se decidió así tanto por las características del terreno como para facilitar la accesibilidad; de hecho, el acceso ha sido el problema más difícil de resolver en este proyecto porque solo se tenía por delante”.

Mientras, el tercer dormitorio, el baño compartido y el baño privado están orientados hacia el este, hacia el patio central. Además, ambos baños de los cuartos privados cuentan con patio, lo que permite la entrada de luz natural y un espacio más agradable.

Casa Âmago es un edificio en el que, bajo un presupuesto de 600.000€, el área de construcción alcanza los 765 m² y la superficie total del terreno alrededor de 1.750 m².

Además, el edificio erigido por Bruno Dias se organiza en una planta ortogonal, que contrasta con la cubierta de losas orgánicas en hormigón armado, con patios circulares.

Âmago significa médula, centro, núcleo, punto focal, de modo que el patio central de la casa funciona como punto arquitectónico principal.

Sobre Bruno Dias Arquitectura
Bruno Dias es arquitecto graduado de la Universidad de las Artes de Coimbra (ARQA), en 2007. Posteriormente, se fue a trabajar a Argelia, Suiza y Francia. Al regresar a su país de origen abrió su propio taller, Bruno Dias Arquitectura, en Ansião (Portugal).
Establecido sólidamente ya en 2012, el estudio Bruno Dias Arquitectura se enfocó en tratar de brindar la perfecta armonía entre lo que el cliente quiere y la simbiosis de lo que ofrecen los espacios. Actualmente, el taller cuenta con dos colaboradores que participan, sobre todo, en estrategias de negocio relacionadas con viviendas unifamiliares, equipamientos y servicios.

La mayoría de los proyectos realizados por Bruno Dias Arquitectura se materializan en hormigón, madera de pino y vidrio. Como sostienen los profesionales, “creemos que nuestros materiales tienen que ser nobles y genuinos; por eso intentamos no trabajar con imitaciones”.
Además, el grupo Bruno Dias Arquitectura crea su propio diseño de muebles e iluminación para aplicar en sus dinámicas de empresa.
Ficha técnica de Casa Âmago:
Inicio Proyecto: 2018
Finalización Proyecto: 2022
Clientes: Bruno Dias y Fernanda Santos
Área: 765 m²
Estudio: Bruno Dias Arquitectura
Equipo: Bruno Lucas Dias, Tânia Matias, Cristiana Henriques
Fotografía: Hugo Santos Silva
