El estudio de arquitectura 2001, con sede en Luxemburgo, ha completado Hercule, una casa unifamiliar monolítica de hormigón en Mondorf-les-bains, en el sur de Luxemburgo. El nombre de la casa Hercule, hace referencia a la fuerza del héroe local John Gruen alias “Hercule”. La parcela está situada en una parcela en pendiente que forma parte de una zona residual de una antigua granja situada en una población suburbana. Se trata de un proyecto que toma inspiración de la arquitectura brutalista.
Imagen superior: Cocina, salón y cuarto de estar. Casa Unifamiliar Brutalista Hercule
Imagen superior: Vista del Patio. Casa Unifamiliar Brutalista Hercule
“El proyecto se traduce en un artefacto multifacético, un bastardo arquitectónico, que se ocupa de la complejidad del contexto y define espacios vitales para una familia joven en el siglo XXI”, afirma Philippe Nathan. fundador del 2001.
Solo los elementos estructurales principales son visibles y se mejoran mediante el uso de encofrado o lijado. La austeridad resultante, que es inusual para los estándares domésticos contemporáneos, subraya la esencia del proyecto: la calidad mínima de los interiores fomenta una relación con el contexto. El diseño facilita la apropiación y la aplicación de la arquitectura atemporal por parte de sus usuarios en sus vidas diarias.
Imagen superior: Fachada principal. Casa Unifamiliar Brutalista Hercule.
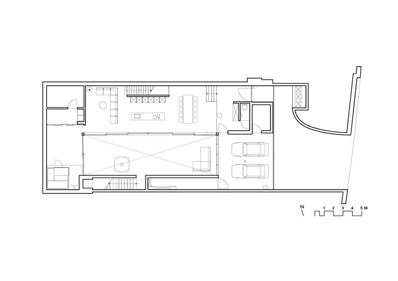
El estudio de arquitectura 2001 aprovechó la inclinación de la parcela para soterrar gran parte de la construcción a modo de iceberg. El sótano reúne todas las funciones técnicas, incluido el garaje; la entrada, el armario, el lavadero, el gimnasio y el spa, la bodega y la cocina, así como el comedor y la sala de estar, ambos dispuestos en un espacio único de 14 x 6 m. abierto completamente en el lado suroeste a través de un patio.
El volumen de la vivienda emerge ferozmente de la tierra como la punta de un iceberg
Estas dimensiones se repiten en los dos pisos superiores, que dan cabida a un gran dormitorio en la primera planta y dos dormitorios en la segunda planta con sus correspondiente baños.
Diferentes enfoques definen las fachadas. Hacia el sur, una pared ciega de béton brut funciona como una viga para los dos pisos superiores, para evitar la necesidad de una columna en la sala de estar, mientras que la elevación norte presenta aberturas puntuales al jardín y al bosque. Las fachada este y oeste orientadas hacia la calle y el jardín, son tratadas como muros cortina con un cristal protector solar. Reflejando los contextos suburbanos y paisajísticos, la casa se integra con su entorno.
Sobre el estudio de arquitectura 2001
2001 es una empresa de arquitectura con sede en Luxemburgo fundada en 2010 por Philippe Nathan, quien se unió en 2014 por Sergio Carvalho como socio.
Philippe Nathan
Philippe Nathan (Esch-Alzette, Luxemburgo, 1982) se graduó cum laude en Arquitectura en 2009 en ISACF LaCambre en Bruselas.
Después de colaborar con la oficina de arquitectura con sede en Bruselas 51N4E durante tres años, regresó a Luxemburgo y en 2010, fundó 2001.
Además de su trabajo en arquitectura y urbanismo, Philippe Nathan interviene en la escena del arte contemporáneo local a través de instalaciones espaciales e investigaciones críticas, y ha sido colaborador, ensayista y miembro del jurado.
Imagen superior: Baño principal Casa Unifamiliar Brutalista Hercule.
Sergio Carvalho
Sergio Carvalho (Luxemburgo 1981) estudió Arquitectura en ISACF LaCambre en Bruselas y en el Politecnico di Milano en Milán.
Después de colaborar con la oficina de arquitectura con sede en Luxemburgo Teisen-Giesler durante tres años, regresó a Bélgica en 2010 como arquitecto independiente. En 2014, se unió al 2001 como socio.
Imagen superior: Dormitorio individual. Casa Unifamiliar Brutalista Hercule.
Créditos——————
Nombre del proyecto: Hercule
Localización: Mondorf-les-bains, Luxembourg
Equipo del proyecto:
Socios: Philippe Nathan, Sergio Carvalho
Arquitecto del proyecto: Julie Moret
Cliente: Privado
Finalización: September, 2018
Superficie construida: 446 sqm
Fotografía: ©Maxime Delvaux
Imagen superior: Baño principal. Casa Unifamiliar Brutalista Hercule.
Imagen superior: Alzado. Casa Unifamiliar Brutalista Hercule.
Imagen superior: Planta sótano. Casa Unifamiliar Brutalista Hercule.
Imagen superior: Primera planta. Casa Unifamiliar Brutalista Hercule.
Imagen superior: Segunda planta. Casa Unifamiliar Brutalista Hercule.
Imagen superior: Alzado. Casa Unifamiliar Brutalista Hercule.
Imagen superior: Alzado Casa Unifamiliar Brutalista Hercule.
Imagen superior: Axonométrica. Casa Unifamiliar Brutalista Hercule.















