Cierto Estudio y las

Cierto Estudio tiene su oficina en Barcelona y está formado por 6 mujeres de 31 años todas ellas. Marta Benedicto, Ivet Gasol, Carlota de Gispert, Anna Llonch, Lucia Millet y Clara Vidal se conocieron en la Escuela Técnica de Arquitectura de Barcelona. Los trabajos que tienen en su portfolio son de lo mas variados: escribir artículos de arquitectura para Neo2, diseñar mobiliario, hacer proyectos de interiorismo, y subiendo a otro nivel, ejecutar proyectos de gran escala de urbanismo y vivienda social.

Os enfrentáis a todo tipo de escalas, desde objetos, pasando por interiorismo y llegando a diseñar edificios enteros. ¿Cómo afrontáis el trabajo en cada uno de estos campos?
A pesar de que sean escalas muy distintas, seguramente nuestra manera de abordar cada proyecto es parecida. Cada nuevo encargo es un reto y una excusa para investigar y aprender. Nos hacemos preguntas, conceptualizamos e intentamos plasmar en unas geometrías las ideas consensuadas. Todos los proyectos parten de un imaginario común y comparten un mismo baúl de referencias. Es por ello que quizás haya una estética similar entre ellos.

¿Qué supuso ganar el concurso Illa Glòries?
Ganar el concurso en 2017 supuso un importante paso hacia adelante y nos garantizó la existencia de Cierto Estudio por un tiempo. Éste ha sido un concurso bastante excepcional, por el considerable tamaño de la promoción, por su céntrica ubicación y porqué hubo 4 equipos ganadores. Debido a que nuestra propuesta “La Comunidad Habitacional” tuvo el primer premio, también ganamos la implantación urbana.

Imagen superior: Mesa Ignífuga de Cierto Estudio. Foto de Marta Vidal

Cierto Estudio y las

Imagen superior: Las componentes de Cierto Estudio. Foto de Marta Vidal

Este hecho ha implicado que nosotras coordinemos los otros ganadores y que lideremos este gran proyecto. Llevarlo adelante nos ha supuesto un aprendizaje brutal y una experiencia casi irrepetible. Además, este premio permitió dar a conocer a Cierto Estudio más allá gracias a la relevancia de éste concurso público en los medios. El pasado mes de Julio ganamos otro concurso de vivienda social para la construcción de 69 pisos en el municipio del Masnou con la propuesta “Kitch·room”. Hemos valorado mucho esta segunda victoria porque reafirma que nuestro modelo de vivienda es actual y satisface las necesidades de la sociedad.

¿Cada una de vosotras está especializada en un tema a la hora de afrontar un encargo?
De momento no. Todas tocamos todos los temas y realizamos todo tipo de encargos. En realidad, todavía es una incógnita cómo funcionará Cierto Estudio en un futuro. Nos motiva esta sensación de experimentación e incertidumbre.

Cierto Estudio y las

¿Cuál es el sistema que utilizáis para poneros de acuerdo en la toma de decisiones?
Las decisiones comunes las tomamos habitualmente por votación. En caso de empate, como somos un número par, el azar se encarga de desbloquearlo o bien iniciamos una conversación y alguna cambia su opinión. Realizamos un workshop semanal, como mínimo, para poner en común las cuestiones de proyecto a debatir. Además, diariamente se generan diálogos y breves comentarios alrededor de los encargos en el roce del estudio. Solemos llevar a cabo los proyectos por parejas y éstas van cambiando a medida que los encargos finalizan, así potenciamos la cohesión del equipo.

¿Empezáis a vivir todas del estudio desde el primer momento o es algo que va poco a poco? ¿Lo compatibilizáis actualmente con otros trabajos?
La gestación de Cierto Estudio ha sido a fuego lento, mientras trabajábamos en otros estudios de arquitectura. ¡Tuvimos una doble vida durante más de dos años! Sin embargo, nuestra apuesta en el proyecto siempre fue clara y firme. Ganar el concurso internacional de vivienda social en Illa Glòries a mediados del 2017 nos permitió a las 6, al fin, dedicarnos exclusivamente a nuestro estudio.

¿Qué tendencias veis en el mundo de la arquitectura?
En arquitectura, al menos en Cataluña, hace ya algún tiempo que la desjerarquización de la vivienda está pegando muy fuerte en las nuevas promociones públicas. Creemos que es una tendencia muy positiva, aunque es verdad que, formalmente, está empezándose a rigidizar un poco con el uso de mallas cartesianas que, tipológicamente, tienen sus variantes limitadas. Además, también cabe destacar la relevancia del factor energía y el criterio de sostenibilidad, patente cada vez en más proyectos. En esta misma línea, también se han recuperado elementos tradicionales propios de la arquitectura vernácula que reducen, con mecanismos pasivos, la demanda energética de los edificios. Nos interesa especialmente cuando estos elementos adquieren también un valor añadido en el proyecto.

Cierto Estudio y las

Imágenes superiores: Casa Cruce de Cierto Estudio. Foto de José Hevia

¿Qué tendencias veis en el mundo del interiorismo?
El punto de vista de Cierto Estudio sobre interiorismo, en general, es bastante arquitectónico. En relación a la vivienda, por ejemplo, sin duda alguna, la cocina está siendo uno de los elementos con más juego en relación al diseño. Los cambios de roles tradicionales, están también influyendo en la manera en cómo ésta se relaciona con el resto de la casa. En cuanto a las geometrías, seguimos a referentes muy formalistas que beben, a su vez, de un post-modernismo que ha vuelto a resurgir. También observamos nuevamente el uso referentes clásicos: arco, columna, cromatismos. Si nos fijamos en las tendencias de los materiales de acabados, el terrazzo está volviendo con fuerza. Nosotras solemos ser bastante puristas con ellos y, habitualmente, preferimos los materiales naturales. Por otro lado, hay una corriente más kitch que usa “materiales fake” explícitamente (sin la intención de aparentar que no lo son) que, bien combinados, puede resultar sorprendente estéticamente.

¿Qué cosas cambiaríais en la ciudad de Barcelona desde el punto de vista arquitectónico o diseño urbanístico?
En Cierto Estudio apostamos por ampliar notablemente el parque de vivienda pública. Es un deber político responder a la demanda social. Para hacer la ciudad más amable, es necesario generar más espacios verdes e incorporar naturaleza urbana. En nuestra cultura mediterránea, es importante potenciar los espacios públicos dotándolos de juegos y actividades que inviten a quedarse y peatonalizar las calles. También es imprescindible invertir en conectividad e ir hacia una movilidad más sostenible, con menos emisiones de CO2. Recientemente, en Barcelona ha habido una clara apuesta por crear más carril bici pero aún hay bastante camino por recorrer en el transporte público, sobre todo al conectar la ciudad con el área metropolitana. Por otro lado, debido a la presión inmobiliaria, recientemente han ido cerrando establecimientos históricos que definían el carácter de Barcelona y ha supuesto una pérdida irrecuperable de la cultura local. Vale la pena darnos cuenta del valor de estos comercios (también como ciudadanos) y, de alguna forma, protegerlos entre todos. Con tal de evitar ciudades-museo, creemos que sus habitantes, en lugar de los turistas, deben ser los protagonistas de cualquier ciudad, así que hace falta centrar en ellos todas las atenciones.

Cierto Estudio y las

Imagen superior: Terraza Rosa de Cierto Estudio. Foto de José Hevia

Un libro sobre diseño o arquitectura que recomendaríais
Va a ser difícil quedarnos con solo uno. “Luz cenital” de Elías Torres es una delicia espacial. Si lo que te interesa es teoría sobre la vivienda y formas de habitar la ciudad, la trilogía de Xavier Monteys “Casa collage”, “La habitación” y “La calle y la casa” es un gran recopilatorio de referencias y una inteligente reflexión a estas cuestiones. Si eres más de revistas y colecciones, cualquier “Croquis” es una gran manera de descubrir buena arquitectura o también con la publicación “Quaderns” del COAC. Por último, nosotras consultamos a menudo “A Dictionary Of Color Combinations”, una finura japonesa que se puede convertir en una verdadera herramienta compositiva para cualquier disciplina del diseño.

Explicadnos algunos de los trabajos de Cierto Estudio

1) Casa Cruce
Esta fue una reforma con intervención estructural en una vivienda tradicional de Barcelona con suelos hidráulicos originales y molduras en los falsos techos. La intervención se centró en modificar las relaciones espaciales entre cocina, comedor, sala y galería dando lugar a una nueva pieza que albergaría la estantería para vinilos. El esquema de los cinco espacios ordenados en retícula, queda conectado por el mueble circular que envuelve esta cruz central. Cada estancia, equipada con su mueble a medida, es versátil y ambigua.

2) Terraza Rosa
Remodelación del espacio exterior de un ático en el barrio de Gràcia (Barcelona) en colaboración con Marta Armengol. Agrupamos el mobiliario fijo en el perímetro de la terraza para equiparla, pero, a su vez, liberarla de obstáculos. Una jardinera corrida, una barra alta, una fuente existente, otras jardineras y un gran sofá circular recorren los extremos del espacio. Un espacio invernadero anexo a la sala de la vivienda se prolonga fuera mediante una pérgola dónde comer en sombra. La estructura en bóveda encima del sofá dónde se enredará la naturaleza es el otro elemento que define el carácter espacial. Distintas actividades simultáneas pueden ocurrir bajo este variopinto manto pintado todo de rosa en combinación con el granate de los elementos metálicos.

Cierto Estudio y las

Imagen superior: Estantería Templo de Cierto Estudio. Foto de Marta Vidal

3) Estantería Templo
Estantería de baldas de DM hidrófugo negro y testimonios de hormigón extraídos de la Sagrada Família como soportes, de ahí su nombre. Se trata de una pieza que funciona por gravedad y que, mediante la distinta posición de los apoyos, se pretende optimizar el descenso de fuerzas y generar un equilibrio bello.

4) Mesas Ignífugas
Diseñamos las dos mesas de trabajo de nuestro primer estudio y escogimos producirlas en DM ignífugo rojo. Una de ellas, asimétrica, combina el DM con tres patas metálicas metalizadas. Los huecos abiertos debajo del sobre nos sirven para almacenar los papeles y utensilios del día a día. Además, en el centro tienen un cajón que esconden las conexiones de los ordenadores.

Cierto Estudio y las

Cierto Estudio y las Cierto Estudio y las

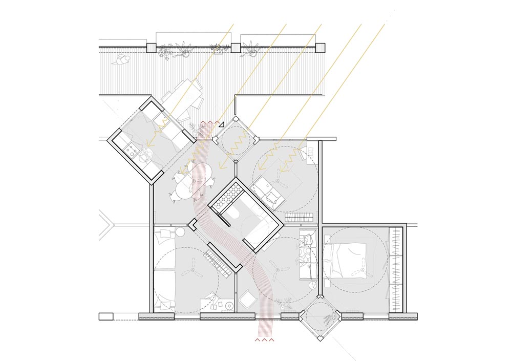
Planos e imagen superior del proyecto Illa Glòries de Cierto Estudio

5) Illa Glòries
“Illa Glòries” es la única manzana de la futura “Plaza de les Glòries” que alberga vivienda social. Se encuentra entre Gran Via, el nuevo Mercado de “Els Encants” y el Teatro Nacional de Catalunya. Un emplazamiento privilegiado para un programa social necesario. Pensamos en una manzana densa, capaz de dar continuidad a la trama urbana consolidada del Eixample y ofrecer cierta permeabilidad intencionada en contacto con la calle. Una volumetría clara que nos revela de lejos su voluntad de prolongar un incipiente recorrido peatonal que nace en la Diagonal y desemboca en el acceso principal del Mercat dels Encants.

Apostamos por la vivienda colectiva y por ello se accede a ella a través del espacio comunitario más generoso: la pasarela. Este espacio exterior es el lugar de encuentro que genera comunidad entre los vecinos y relaciona las viviendas con los demás espacios comunitarios: el patio y la cubierta.

Proponemos una vivienda versátil capaz de adaptarse a los cambios de nuestras necesidades de forma reversible y ligera. Buscamos esta adaptabilidad en tres ámbitos esenciales: la porosidad –“No sé por qué pero ¡la casa parece más grande!”–, la ambigüedad de las estancias – “No necesito un salón enorme, en cambio, me gustaría tener una habitación más para que vengan mis hijos el fin de semana” –, y la multiplicidad de accesos – “Carla se ha emancipado y he convertido su habitación independiente en mi lugar de trabajo” –.

La vivienda se compone por una secuencia de estancias y rótulas interconectadas. La disposición de una estancia en el centro de gravedad de la casa concede autonomía a las habitaciones que vertebra y a su vez irradia vida desde el centro, allí donde todo se comunica. La disposición de rótulas en las intersecciones, permite multiplicar las conexiones físicas y visuales en diagonal, dando lugar a la habitación independiente, un apéndice de la vivienda en pro a la flexibilidad. ¡Bienvenido a la república independiente de tu habitación!

www.ciertoestudio.com