
Luces y sombras detectó Ortega Diago en Casa Kendo, vivienda donostiarra cuya reforma demuestra que lo preexistente no únicamente impone límites; también facilita cualidades dadas.
Esto se debe a que Casa Kendo ocupa la séptima planta de un edificio de finales del siglo XIX en San Sebastián, un lugar que llegaba con reglas ya escritas, pero también con cartas ganadoras: su altura y orientación aseguraban –y aseguran– una privilegiada entrada de luz natural. Para su rehabilitación, Ortega Diago evitó recrearse en lo histórico para crear un interior contemporáneo que se centrase en la experiencia espacial del habitante.

Una casa pensada a partir de la luz
Con esa ventaja lumínica que ofrecía Casa Kendo, Ortega Diago supo rápidamente qué debía guiar el proyecto, con un presupuesto de 1.500€ por m² sin contar mobiliario. Todo –formas, materiales y disposición– se pensó para que la luz se moviera, se multiplicara y alterara a lo largo del día la percepción de esta residencia de 4 dormitorios. “Quisimos plantear un juego con la luz natural, y es por ello que buscamos un único tono para la vivienda, y un planteamiento de tabiques y texturas que nos ayudaron a atraparla en el interior generando imágenes que ya teníamos en la cabeza”, explican desde el estudio.
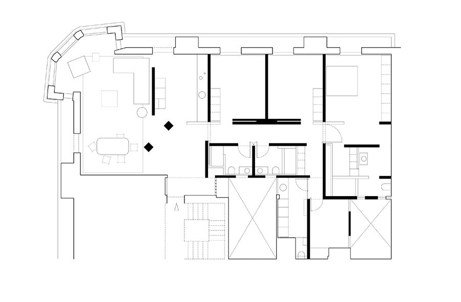
Un pasillo impuesto, el pilar de Casa Kendo
También llama la atención que el pasillo, tantas veces sacrificado en favor de lo abierto, sea uno de los grandes pilares de Casa Kendo. Ortega Diago lo amplió y lo transformó en la pieza que ordena y enlaza todas las estancias. Una decisión que ejecutó sin terminar de cerrarlo, al permitir que esa luz protagonista se filtre a través de bloques de vidrio. Así, el habitante se adentra y Casa Kendo se deja conocer lentamente como un pequeño juego donde cada paso descubre un nuevo ámbito.




“El reto del proyecto fue conseguir que el inevitable pasillo que la planta de la vivienda te obligaba a incorporar llegara a ser un lugar especial. Debussy decía que ‘la música es el espacio entre las notas’, y de un modo parecido vemos mucha arquitectura en los espacios que unen otros espacios principales de la casa”, apunta el despacho.
La piedra de Campaspero como aliada de la luz
Además, el uso de la piedra de Campaspero arenada como elemento dominante, aplicada tanto en pavimentos como en revestimientos verticales, crea una superficie atonal continua que unifica toda Casa Kendo. Siempre al servicio de la luz, se trata de un material que la recoge y la devuelve con matices, dejando que sus variaciones, especialmente al atardecer, reescriban constantemente la atmósfera. “Cuando la luz de la tarde se desliza sobre su superficie, el espacio adquiere una densidad inesperada, casi íntima”, comentan desde Ortega Diago.





Un interior sencillo y cuidado
Ortega Diago firmó también el interiorismo y mantuvo la misma línea sobria, elegante y neutra. Para ello seleccionó piezas de Fritz Hansen, como las sillas Ant y la mesa de comedor; la lámpara Akari de Vitra; el sillón Scandia de Fjordfiesta y, como broche, la silla Tarugo diseñada por el propio despacho.
Sobre Ortega Diago
Con sede en San Sebastián, Ortega Diago es el estudio liderado por Gonzalo Sánchez Ortega (1991, Irún) y Armando Diago (1993, San Sebastián), quienes desde 2021 compatibilizan la práctica profesional con la docencia y la investigación. En 2023 recibieron el Premio Peña Ganchegui, un espaldarazo a su trayectoria emergente.

Ficha técnica
Proyecto: reforma e interiorismo residencial.
Autores: Ortega Diago (Gonzalo Sánchez Ortega, Armando Diago).
Localización: San Sebastián.
Superficie: 170 m².
Programa: vivienda unifamiliar, 4 dormitorios.
Duración de obra: 10 meses.
Coste: 1.500 €/m² (sin mobiliario).
Fotografías: David Zarzoso.
Pavimento: piedra de Campaspero arenado.
Mobiliario: sillas Ant (Fritz Hansen), mesa de comedor (Fritz Hansen, Bruno Mathsson, Arne Jacobsen, Piet Hein), sillón Scandia (Hans Brattrud para Fjordfiesta), silla Tarugo (Ortega Diago)
Iluminación: lámpara Flamingo (Álvaro Siza para Bd Barcelona), lámpara Akari (Vitra)
Griferías: Vola.