El guateque de Adrià Escolano y David Steegmann

Los arquitectos Adrià Escolano y David Steegmann se encuentran con un espacio que ellos llaman Frankestenin: espacios interiores sin escala, sin jerarquía resultado de múltiples modificaciones, amputaciones y derribos.  El Guateque es el nombre que le han dado a este proyecto que convierte una casa casi en ruinas, en dos viviendas independientes.

Adriá y David se encuentran con una una reforma a medio hacer (parada por la anterior crisis económica), donde habían tirado toda la anterior distribución y completado un tratamiento de aluminosis en las vigas del techo. Casi una ruina. El encargo viene de la mano de unos clientes que se dedican a la decoración, concretamente a la creación de sets publicitarios. Los dueños ven el inmueble en venta y acuden a los arquitectos para que les acompañen en el proceso de decisión y restauración. Lo que más llama la atención de esta reforma, es sin dudas, el mueble técnico presente en las tres plantas y que conecta de alguna forma con la profesión de los dueños. Es un frontal de madera donde se alojan equipamientos necesarios de cocina y a veces del aseo.

El guateque de Adrià Escolano y David Steegmann

El guateque de Adrià Escolano y David Steegmann

Adrià Escolano y David Steegmann tiene una fijación especial con las cocinas, ellos nos lo explican de este modo: “Nos interesa investigar en una de las piezas de la casa que más ha cambiado a lo largo de la historia, por todas las inercias tecnológicas, políticas y sociales que la definen. De una forma casi involuntaria, las cocinas se convierten siempre en un proyecto en sí mismas, forzándonos a revisar los principios que las rigen. Si en el proyecto A Table (II) la mesa se convierte en el motivo central contagiando todas las demás decisiones, en El Guateque la cocina es el elemento primigenio, del que las demás piezas técnicas serán formalmente subsidiarias.”

El guateque de Adrià Escolano y David Steegmann

El guateque de Adrià Escolano y David Steegmann

El guateque de Adrià Escolano y David Steegmann

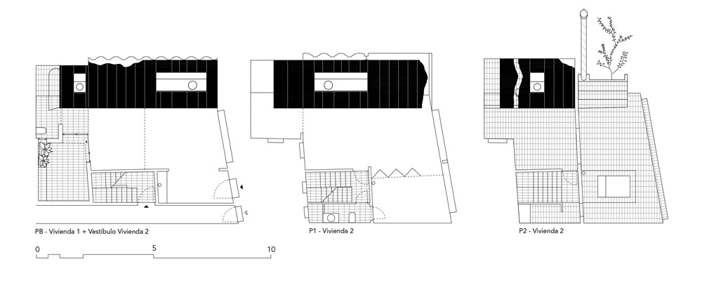
Son160 m2 construidos que se convierten en: Una vivienda mínima de 45m2 en planta baja y un dúplex de 100m2 en planta primera y segunda. Los metros cuadrados restantes corresponden a una servidumbre de paso en planta baja que da acceso a la parcela posterior. El precio por metro cuadrado sale a unos 1000€ PCE.

El guateque de Adrià Escolano y David Steegmann

El guateque de Adrià Escolano y David Steegmann

Un elemento que esta pareja de arquitectos usa frecuentemente en sus proyectos es la baldosa de terracota. “La baldosa de terracota es la materia vulgar con la que siempre se han pavimentado las terrazas y azoteas en nuestra región. Por el contexto del proyecto, un barrio obrero, la decisión de usar materiales oriundos del lugar como el terrazo, el aluminio anodizado o la baldosa de terracota nos parecía pertinente.” Nos puntualizan Adrià Escolano y David Steegmann.

El guateque de Adrià Escolano y David Steegmann

El guateque de Adrià Escolano y David Steegmann

El nombre de El Guateque viene porque les gustaría pensar en esta casa como un lugar propicio para el ocio y el placer. En este proyecto, donde sus muebles funcionan como una escenografía de fondo, el título de la película de Peter Sellers, con la casa convertida en el gran escenario de una fiesta, les pareció un buen homenaje.

El guateque de Adrià Escolano y David Steegmann

El guateque de Adrià Escolano y David SteegmannPor curiosidad les preguntamos el porqué de trabajar siempre juntos pero tener sus propios estudios separados: “Si bien es cierto que todo apunta a que en un futuro cercano consolidemos la estructura de trabajo que tenemos organizada, hasta el momento nos ha parecido más interesante mantener la autonomía del nombre propio, algo perenne y mucho más cercano a la pareja de hecho que al matrimonio. No obstante trabajamos bajo el paradigma del sharedwallet, compartiendo todos y cada uno de los ingresos que somos capaces de generar, tanto los provenientes de contratos de docencia en la universidad como los proyectos profesionales, que siempre compartimos.”

 

—————————

Ficha Técnica:

Dirección proyecto: Passeig de la Mare de Deu del Coll 153, Barcelona
Año de finalización: 2019
Superficie construida:160m2
Arquitectos: Adrià Escolano y David Steegmann
Otros participantes: Alex Gràcia (arquitectura), Joan Ovejero (estructuras),
Axis Patrimoni / Constructiva Global (construcción)
Fotografía:José Hevia
Productos construcción: Mosaics Planas (pavimento),
Ceràmica Ferres (rasilla), Cortizo (ventanas),
Gradhermetic (persianas) y Roca (sanitarios)

—————————

www.adriaescolano.com