Estudio Minimo: Reformas para la optimización de espacios

Me llegó hace unos meses un par de proyectos del estudio de arquitectura Minimo. Eran reformas de pisos pequeños en Madrid resueltos de forma muy sencilla y funcional. Lo que más me gustó fue el sistema de presupuestar sus trabajos y la forma de ejecutarlos. Os mostramos su último proyecto y su forma de trabajar.

El estudio Minimo lo fundan en Madrid Sergio Sánchez y Alberto Rubial, (los dos del 89) en 2019. Se conocen en la Escuela de Arquitectura de Madrid, y empiezan a trabajar juntos con el nombre de Rubial-Sánchez en 2015. En esta primera etapa, gran parte de su trabajo consistía en hacer colaboraciones con otros arquitectos. A partir del 2016 empiezan a desarrollar trabajos propios al 100% y el año pasado se transforman en Minimo. Un estudio de arquitectura como ellos dicen: “Está especializado en la optimización del espacio que surge para dar respuesta a una demanda generacional: queremos vivir a lo grande.”

Estudio Minimo: Reformas para la optimización de espacios

Lo que más me llamó la atención del estudio de arquitectura Minimo, es su sistema de planes para poder afrontar una rehabilitación en una  vivienda. En ellos se detallan sus honorarios y los tiempos que se dedican al diseño y a la realización. Se trata de packs o planes completos de reforma, donde se rediseña toda una vivienda: mobiliario modular de almacenaje, cocina, suelos, baños, ventanas, suelos, etc…

Estudio Minimo: Reformas para la optimización de espacios

Están especializados en pisos pequeños, (45m2 – 60m2) pero también se enfrentan a otros formatos como el que te mostramos en este artículo (de 100m2), que es la última rehabilitación que han acabado.

Su sistema consta de tres planes diferentes: Lite, Home y Plus, cada uno de ellos indica una mayor dedicación al proyecto, en el primero se trabaja con ideas ya probadas y eficaces fácilmente aplicables a una vivienda. Los planes Home y Plus son planes en los que se desarrolla, en mayor o menor medida, soluciones personalizadas para crear un proyecto único.

Estudio Minimo: Reformas para la optimización de espacios

El Plan Lite (a partir de 50.000€) es el más barato, en él,  Minimo cobra el 8% del precio total del total de la obra. En el plan Home sus honorarios son  del 10% y en el Plus del 12%.

Estudio Minimo: Reformas para la optimización de espacios

Este porcentaje de honorarios es sobre el total del presupuesto de reforma. En los planes también viene, muy bien explicado, los tiempos de realización. Minimo se encarga de todo!! Diseño, licencias, obra, etc.. Para la obra se piden varios presupuestos a diferentes constructoras. Todo con un sistema muy claro a la hora de trabajar.

Estudio Minimo: Reformas para la optimización de espacios

Como ejemplo del trabajo del estudio Minimo, te mostramos la última reforma que acaban de terminar, que es la reforma de una casa en el barrio de la Guindalera de Madrid. En este caso se ha utilizado el plan Plus y se han reformado 100m2, donde el precio por metro cuadrado ha sido de 700m2. Es decir que la reforma costó 70.000€ + el IVA ( IVA que en obras de rehabilitación para cliente particular, cumpliendo una serie de requisitos que casi siempre se cumplen, es reducido al 10%)

Estudio Minimo: Reformas para la optimización de espacios

El proyecto se llama M03, y desde que se firmó el contrato y comenzaron a trabajar, tardaron 9 semanas hasta tener el proyecto y el presupuesto preparado para licitarlo entre varias constructoras. Desde el inicio de la obra hasta que terminó, la constructora estuvo trabajando 4 meses aproximadamente, además del mes de agosto donde el ritmo de trabajo en la construcción baja muchísimo.

Estudio Minimo: Reformas para la optimización de espacios

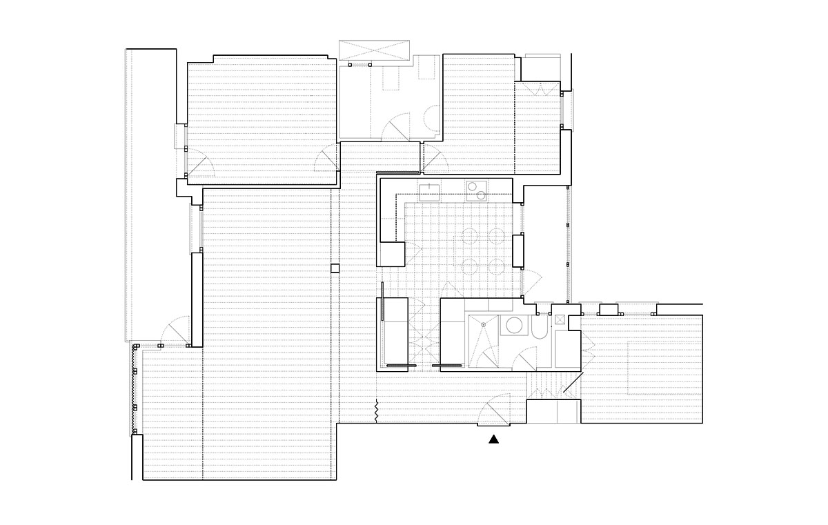
M03 es una vivienda de una pareja que se jubilaron el año pasado y que tienen dos hijos en la treintena ya independizados. La casa está situada justo delante del parque Eva Duarte, en el barrio de Guindalera (Madrid). Tenía una disposición muy típica de vivienda de finales de los años 60 (el edificio es del año 1968), donde solamente la sala de estar y el dormitorio principal se abrían al parque, y el resto de la casa: 3 dormitorios individuales, una pequeña cocina y dos baños daban a patio interior de la manzana; se conectaban a través de un pasillo kilométrico.

Estudio Minimo: Reformas para la optimización de espacios

Los propietarios consideraba la cocina como una parte esencial de la vida en su casa, un espacio de encuentro y reunión familiar fundamental. Por eso el estudio Minimo decidió hacer de ella el centro de la casa, formalizándola como una gran caja servidora que protagoniza el espacio principal, ahora diáfano, de la vivienda.

Esta caja abierta permite potenciar la relación entre la cocina y el espacio de estar y comedor a través de dos aberturas profundas construidas en madera de abedul que proyectan y enmarcan la cocina al exterior. El espacio de estar se concibe como una nave longitudinal acotada por dos vigas metálicas originales que definen el espacio sin necesidad de construir otras divisiones.

La climatización de la vivienda se ha mantenido tal cual estaba, con un split y calefacción central comunitaria por radiadores, ya que con ligeros ajustes, funcionaba bastante bien y tenían un presupuesto ajustado que querían gastar en otras cosas. Sí que se aprovechó la obra para realizar pequeñas intervenciones que mejoraran la envolvente y el comportamiento energético de la vivienda.

Estudio Minimo: Reformas para la optimización de espacios

Se intervino con aislamiento toda la tabiquería en contacto con los vecinos, se instalaron unas buenas ventanas de aluminio con vidrios aislantes con control solar, menos ganancia térmica en verano y menos perdidas en invierno.  También se instaló en el mirador del salón una persiana plegable regulable exterior para controlar la incidencia directa del sol en el salón de la casa.

Un detalle también interesante son las puertas, que llegan hasta el techo y que crean una sensación de fluidez y de integración del espacio. Se pudieron cambiar todas menos la puerta principal a la vivienda ya que forma parte de los espacios comunes del edificio. Esta puerta se panelaron en color blanco en su interior.

Estudio Minimo: Reformas para la optimización de espacios

La solución de suelos diferencia dos zonas claras, la interior del módulo de cocina+baño en material porcelánico, muy resistente y con muy fácil mantenimiento; y la exterior, donde se ha instalado un parquet de tablillas de castaño barnizado mate. Hay otro punto de la vivienda, el paso hacia el dormitorio que queda cercano a la entrada, donde tanto el suelo como el techo se han revestido con el mismo tablero fenólico de abedul que la puerta del baño y los armarios que quedan frente a ella, buscando de nuevo, que todo pase desapercibido al estar cerrado, para ordenar mucho mejor toda esa zona.

Estudio Minimo: Reformas para la optimización de espacios

Los honorarios del estudio Minimo por este proyecto de 70.000€ fue de un 12% ya que se utilizó el plan Plus, es decir 8.400€

Estudio Minimo: Reformas para la optimización de espacios

Cuando les preguntamos por  la filosofía de su estudio Minimo, nos explica Sergio Sanchez: “Nos gusta ser eficaces y estamos en continua optimización, tanto a la hora de proyectar y construir, como a la hora de analizar nuestra manera de trabajar en el estudio y nuestros procesos internos. Pensamos que hacer arquitectura de la mayor calidad posible no tiene por qué ser incompatible con hacer proyectos que nuestros clientes puedan pagar y hacerlos a un ritmo que permita asegurar la viabilidad económica del estudio.”

————-

Colaboradores: Carlos Puentes Ramiro
Planos en pdf de acabados carpintería y baños aquí
Fotografías: Alberto Amores – Amores pictures

Más info en estudio Minimo: www.minimo.pro