Estudio Reciente traza en FDL18 una vivienda sin muros

Estudio Reciente ha llevado a cabo la rehabilitación integral de un ático en el barrio de Chamberí. El proyecto, DL18, ocupa los 120 metros cuadrados de la última planta de un edificio entre medianeras.

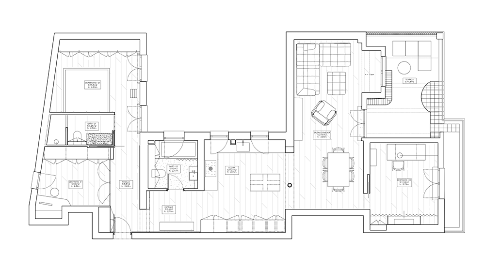
Dicha planta, alargada y casi simétrica, imponía ya un orden que Estudio Reciente ha seguido con rigor. Desde esa base, la intervención se organiza sobre una evidente dualidad: materiales y colores dividen el espacio sin fragmentarlo. En las zonas de paso -entrada, baño, cocina, pasillo- domina una mayor intensidad cromática. En las demás, prevalecen los tonos neutros. De este modo, la transición entre áreas se produce sin muros, y es la luz la que termina de coser el recorrido de la vivienda.

Estudio Reciente traza en FDL18 una vivienda sin muros

El acceso a DL18

El acceso a DL18 acentúa ya ese primer contraste. La madera de roble, presente en el panelado y en la puerta de acceso, se enfrenta al verde musgo empolvado del pasillo, del armario y del mármol avocatus que enmarca la embocadura. Frente a la puerta del baño, disimulada tras un espejo, se abre un interior donde el rojo del mármol alicante, la junta del gresite y el brillo del techo aportan densidad.

Estudio Reciente traza en FDL18 una vivienda sin murosEstudio Reciente traza en FDL18 una vivienda sin murosEstudio Reciente traza en FDL18 una vivienda sin muros

Estudio Reciente traza en FDL18 una vivienda sin murosEstudio Reciente traza en FDL18 una vivienda sin murosEstudio Reciente traza en FDL18 una vivienda sin muros

La cocina de la propuesta

En la cocina, la encimera de acero refleja los tonos rojizos del alicatado de Palet. Ese mismo color aparece en el pilar y la viga que separan el área culinaria del comedor, marcando el paso hacia un salón más tenue, compartido con el estudio. En la terraza, el verde reaparece a través de unas persianas Barcelona que actúan como pérgola y matizan la luz.

Estudio Reciente traza en FDL18 una vivienda sin murosEstudio Reciente traza en FDL18 una vivienda sin murosEstudio Reciente traza en FDL18 una vivienda sin muros

El ala privada

En el ala opuesta, el verde acompaña el pasillo hasta el dormitorio, interrumpido solo por la carpintería negra con vidrio acanalado del segundo estudio. La pared contrasta con el panelado de roble que hace de cabecero. En el baño en suite, el microcemento marrón unifica suelo y paredes, y un lavabo de ónix aporta claridad sin alterar el equilibrio general de la casa.

Estudio Reciente traza en FDL18 una vivienda sin murosEstudio Reciente traza en FDL18 una vivienda sin muros

Sobre Estudio Reciente

Estudio Reciente es un despacho fundado en 2017 por el arquitecto Carlos Tomás, tras completar su formación en Valencia y desarrollar parte de su trayectoria profesional en Lausana, Suiza. Con sede en Madrid, el estudio trabaja en proyectos de arquitectura, interiorismo y diseño de objetos, abordando cada encargo desde una atención rigurosa al contexto, al uso y a la luz natural. La precisión constructiva, el control en la elección de materiales y una lectura funcional del espacio definen su metodología, tanto en intervenciones de gran escala como en trabajos de menor envergadura.

Estudio Reciente traza en FDL18 una vivienda sin muros

Ficha técnica

Nombre del proyecto: DL18
Estudio: Estudio Reciente
Tipología: rehabilitación integral de vivienda
Ubicación: barrio de Chamberí, Madrid
Cliente: encargo privado
Superficie: 120 m²
Año de realización: 2024
Fotografía: Germán Saiz