
Tinyleaf es el nombre del diminuto retiro de montaña, que los arquitectos de GO’C han proyectado con poco más de 30 m2 al abrigo de los altos abetos que salpican el accidentado relieve del entorno del North Cascades National Park, en el oeste de los Estados Unidos.
A pocas horas de la lluviosa Seattle, cerca de la frontera con Canadá, el estudio fundado por los arquitectos Jon Gentry y Aimée O’Carroll interviene en el paisaje virgen del valle de Methow para diseñar un práctico habitáculo de escala mínima. El cliente eligió este lugar, ubicado en la cima de la colina, por sus espectaculares vistas al bucólico paisaje, donde discurren las mansas aguas del río Methow. Y prevé encargar otra cabaña en un futuro próximo, que funcione como alojamiento para los amantes de las actividades al aire libre que deseen vivir la experiencia de pasar la noche en plena naturaleza.

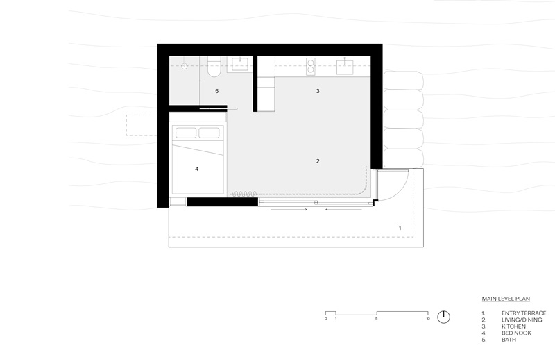
Tinyleaf tiene forma de cubículo. Sus dimensiones de 6,7 m de largo y 4,6 m de ancho son reducidas, pero comprenden un espacio interior muy bien aprovechado. Los arquitectos de GO’C han organizado una distribución basada en la convivencia de los distintos espacios de la vivienda. De manera que, la estancia principal es, al mismo tiempo, un rincón de descanso, un frente de cocina y una sala de estar. Tan solo el baño se encuentra en una habitación independiente.

El equipo de GO’C ha emplazado estratégicamente el volumen en el lado sur de la ladera, apoyado sobre una losa de hormigón. El frente orientado al sur está formado por un gran ventanal de cristal por el que entra abundantemente la luz. Sus puertas correderas pueden abrirse, creando el efecto de proyectar los interiores a la inmensidad del paisaje e invitando a sentarse a tomar el sol en el exterior. En cambio, los tres laterales del habitáculo que limitan con la inclinada pendiente del terreno son opacos. Se trata de muros de contención construidos con hormigón in situ para sostener las tierras.


Arquitectura de escala mínima enmarcada en el frondoso paisaje de montaña
En el interior de la cabaña, la textura clara de la madera se convierte en la principal protagonista. Los arquitectos de GO’C la han utilizado tanto para revestir el techo, como para los paramentos verticales, que son a su vez elementos de almacenaje. Por ejemplo, contienen la despensa, la estantería del cabecero de la cama o los aparadores de la cocina. El objetivo es liberar al máximo el espacio para lograr que sea lo más funcional y cómodo posible.


Un tragaluz sorprende en la parte posterior de la cabaña generando una abertura, a lo largo de todo el ancho del volumen, que proporciona luz natural al baño y al frente de la cocina. Esta iluminación cenital adicional crea una atmósfera cálida y dota a los interiores de una mayor sensación de amplitud.

El diseño de Tinyleaf potencia las conexiones con el paisaje. El porche que recorre toda la fachada sur da cobijo a una agradable terraza exterior, al mismo tiempo que sirve para proteger el gran ventanal de la incidencia directa del sol y resguardar la puerta de entrada. Por otro lado, la cabaña cuenta con un leñero en uno de los laterales, destinado a almacenar los troncos para la lumbre. Y también dispone de un canalón que permite retirar el agua de la cubierta plana en época de lluvias.



Además del hormigón y la madera, el otro material que integra Tinyleaf es el acero corten, utilizado en los paneles corrugados que singularizan la estética de la fachada y en la plancha metálica que conforma el porche. El material se caracteriza por su acogedor color, cargado de matices rojizos y anaranjados, su alta resistencia y su poco mantenimiento. Unas cualidades que le confieren una elevada capacidad de adaptación, posibilitando que la arquitectura envejezca y se mimetice cada vez más en el paisaje con el paso del tiempo.


—–
Créditos de Tinyleaf:
Arquitectura: GO’C
Equipo: Jon Gentry, Aimée O’Carroll, Ben Kruse
Ubicación: Mazama, Washington, Estados Unidos
Año de finalización: 2024
Superficie: 30,80 m2 (4,60 m x 6,70 m)
Ingeniería estructural: J Welch Engineering
Fotografía: Ben Lindbloom