
Sin niños aún, pero con cabida asegurada para ellos, una pareja joven confió en el estudio de arquitectura Maximale la reforma de Casa ST, su primera residencia ubicada por la zona del parque de Berlín de Madrid.
Maximale trabajó sobre un inmueble de tres plantas, con una superficie aproximada de 150 m² interiores que alcanza los 210 m² al incluir los espacios exteriores de Casa ST. “Los clientes nos dieron mucha libertad en los diferentes aspectos del diseño, aunque tenían algunas referencias visuales claras porque en su entorno personal cuentan con arquitectos y artistas. Querían una vivienda que respirara la paz y la calma que se desprenden de este tipo de tipologías a pesar de estar en plena ciudad”, explica el despacho sobre el encargo.

Continuidad frente a fragmentación
Maximale identificó como principal reto impedir la desconexión entre los distintos niveles, una condición común en moradas desarrolladas en altura. El proyecto perseguía, por consiguiente, una lectura única, apoyándose en una base neutra, en la continuidad material –roble natural en carpinterías, mobiliario y panelados, así como microcemento continuo en los pavimentos interiores– y en la presencia de ciertos elementos que enlazan las distintas zonas.




La escalera como pieza fundamental de Casa ST
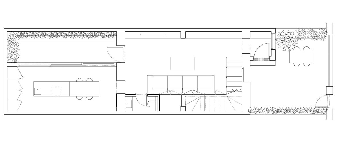
Entre ellos, la escalera de roble con barandilla de acero inoxidable de la planta baja adquiere el máximo protagonismo. Maximale la integró en un gran panelado de 3,8 metros de altura que ordena y oculta armarios, instalaciones y un pequeño aseo. En este mismo nivel se encuentran el salón y la cocina, que se abren hacia dos patios. El más llamativo es el trasero, vinculado con la cocina mediante un ventanal de 6 metros de longitud que hace que interior y exterior prácticamente se fundan.
El resto de plantas
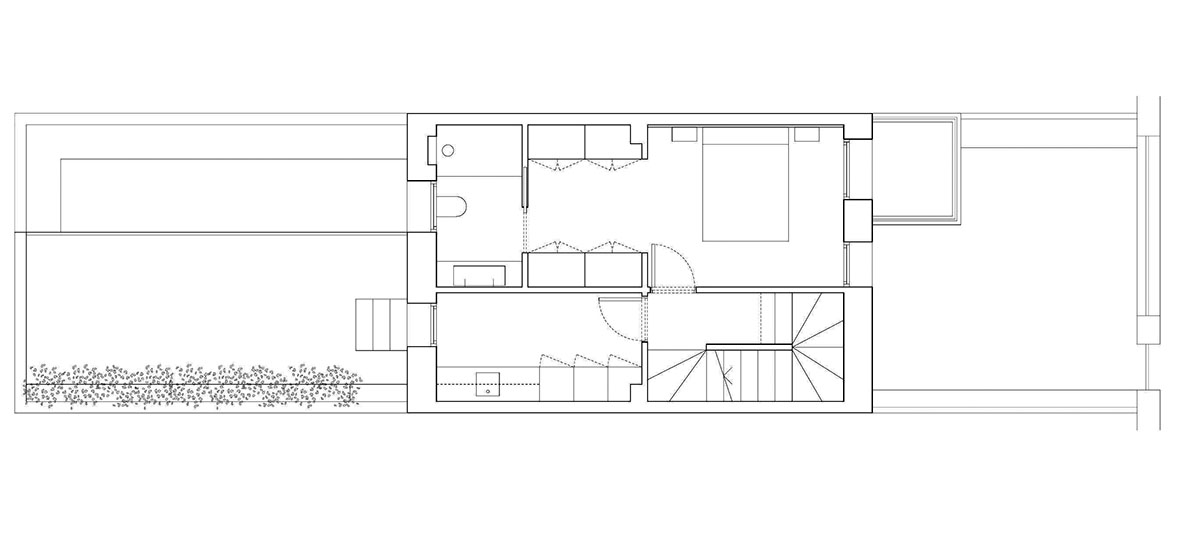
Un piso más arriba, el estudio decidió ubicar el dormitorio principal, con vestidor y baño en suite, además de una lavandería que da acceso a una amplia terraza, haciendo de esta planta un lugar práctico para el día a día y algo más independiente dentro de Casa ST. Por encima, se repartieron el resto de estancias: otro dormitorio, un despacho y un baño completo.
Diseño a medida y piezas singulares
Además, la casa está llena de detalles especiales diseñados a medida. Por ejemplo, la isla de la cocina incluye una mesa volada de dos metros que da la impresión de mantenerse en el aire, sin ningún apoyo a la vista. Maximale también ideó otras piezas únicas como una mesa de centro hecha con la piedra natural caliza de Cosentino, también empleada en el exterior, o un sofá de madera de inspiración japonesa. Todo se acompaña de una iluminación cuidada, mobiliario bien seleccionado y obras de arte.









Eficiencia y duración del proceso
En términos técnicos, la climatización se resolvió mediante un sistema de suelo radiante alimentado por aerotermia, lo que permite una distribución eficiente del calor, en un proyecto que se desarrolló, desde las primeras ideas hasta su finalización en febrero de 2026, en aproximadamente un año.

Plano de planta baja con cocina, salón, escalera y patios.

Plano de planta primera con dormitorio principal, vestidor y baño.

Planta segunda con dormitorios, baño y núcleo de escalera.
Sobre Maximale
El estudio Maximale, ubicado en el número 94 de la calle Vallehermorso de MAdrid, es joven, pero no precisamente inexperto. Lo fundaron en 2022 el marbellí Pablo Delgado (1995) y la palmesana Cristina Garau (1995), después de haber trabajado en ciudades como París, Ámsterdam y Londres. Como explican, su planteamiento se basa en “la sinergia entre una parte teórica muy intencional y conceptual y una materialización que logra espacios con sensibilidad y armonía que desprenden coherencia y calidez”.
En esa línea, también insisten mucho en los materiales y en el detalle. “Nos importa muchísimo cómo la arquitectura hace sentir
a las personas. Estamos convencidos de que un espacio bien diseñado y ejecutado con materiales honestos y precisión en los detalles es capaz de elevar el día a día de sus usuarios”, apuntan.
Ficha técnica
Nombre del proyecto: Casa ST.
Ubicación: Ciudad Jardín, Madrid.
Fecha de finalización: febrero de 2026.
Superficie: 150 m² interiores.
Superficie total: 210 m² incluyendo exteriores.
Tipología: vivienda unifamiliar (reforma integral).
Uso: primera residencia.
Cliente: pareja joven sin hijos.
Estudio de arquitectura: Maximale.
Autores: Pablo Delgado y Cristina Garau.
Constructor: Casa Caldero de Oficios.
Colaboradores: Espacio Betty, Antón Aiguabella.
Fotografía: David Zarzoso.
Planta baja: salón, cocina, aseo, almacenamiento e instalaciones integradas, acceso a patios.
Primera planta: dormitorio principal con vestidor y baño en suite, lavandería, terraza.
Segunda planta: dormitorio, despacho, baño completo.
Materiales: madera de roble natural, microcemento, piedra natural de Cosentino.
Climatización: suelo radiante por aerotermia,
Mobiliario: mayoritariamente a medida.
Iluminación: Espacio Betty.
Luminarias: Santa & Cole.
Apliques: Flos.
Sillas: Vincent Van Duysen para Zara Home.
Duración del proyecto: 1 año.Nombre del proyecto: CASA ST
Ubicación: Ciudad Jardín, Madrid
Fecha de finalización: Febrero de 2026
Superficie: 150 m² interiores
Superficie total: 210 m² incluyendo exteriores
Tipología: Vivienda unifamiliar (reforma integral)
Uso: Primera residencia
Cliente: Pareja joven sin hijos
Estudio de arquitectura: Maximale
Autores: Pablo Delgado y Cristina Garau
Constructor: Casa Caldero de Oficios
Colaboradores: Espacio Betty, Antón Aiguabella
Fotografía: David Zarzoso
Planta baja: Salón, cocina, aseo, almacenamiento e instalaciones integradas, acceso a patios
Primera planta: Dormitorio principal con vestidor y baño en suite, lavandería, terraza
Segunda planta: Dormitorio, despacho, baño completo
Materiales: Madera de roble natural, microcemento, piedra natural
Climatización: Suelo radiante por aerotermia
Mobiliario: Mayoritariamente a medida
Iluminación: Espacio Betty
Luminarias: Santa & Cole
Apliques: Flos
Sillas: Vincent Van Duysen para Zara Home
Duración del proyecto: 1 año.