
Non-Binary, así describe Pachón-Paredes este proyecto de rehabilitación de un apartamento de 100m2 en un edificio construido originalmente por el equipo sindical de Madrid en los 50. El proyecto está basado en la libertad de movimiento y en “no comprometer la libertad de su uso”, siguiendo la premisa del premiado arquitecto Jacques Hondelatte. Con su nueva distribución se ha convertido en un espacio versátil, funcional y creativo.
Non-Binary Space es el último proyecto de Studio Pachón-Paredes. Un apartamento situado en un bloque de 15 plantas en los límites de Madrid-Río con vistas a la Casa de Campo. El edificio, una herencia del movimiento moderno en Madrid, formó parte de un experimento urbanístico, “la colonia de San Antonio”, que se configuró en una isla urbana rodeada por la Casa de Campo, la M30, el río y el centro de la ciudad. Igual de experimental que la zona es el último proyecto de reforma del estudio de arquitectura Pachón-Paredes, que ha basado el proyecto en la funcionalidad y en la creación de un espacio híbrido. Con la reforma, el estudio Pachón-Paredes ha convertido un apartamento anticuado y compartimentado en un espacio versátil lleno de posibilidades. En él se reúnen distintos usos: laboral, ocio y doméstico. Como explican ellos, han creado un espacio “No Binario”, tanto por su nueva distribución como por su mobiliario que se puede transformar según las necesidades. Mostramos este proyecto sorprendente, versátil y con una personalidad única.


Un espacio versátil y multi-funcional
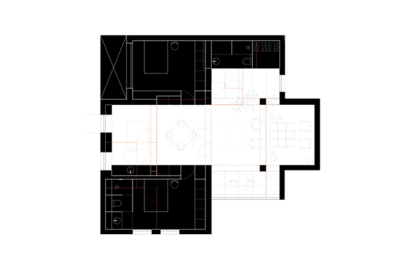
Los arquitectos Luis G. Pachón e Inés García de Paredes se encontraron con un apartamento ultra-compartimentado de los 50 en Madrid con nueve estancias repartidas en una planta de 100m2. Los propietarios buscaban un espacio con la capacidad de variar según las necesidades de sus usuarios y contextos de cada momento, ya sea diariamente, semanalmente o por largos periodos, un espacio híbrido. Para lograr esta versatilidad, los arquitectos decidieron abrir el espacio revelando la planta original del edificio. Y a su vez crear una distribución abierta para configurar espacios multi-funcionales.




Espacios que no estén asociados a una función
Para la nueva distribución, la planta se dividió en un espacio central formado por cinco cuadrantes de las mismas dimensiones. Este espacio se ha dejado totalmente diáfano y cuenta con distintas posibilidades de orientación y energéticas. Esta zona central, en forma de cruz latina, se configuró como una zona libre con un uso no definido. Así los arquitectos dan solución a la versatilidad que buscaban los propietarios. El objetivo era crear una configuración de espacios que no estén asociados a una función: salón, sala de espera o sala de baile o yoga; un despacho o estudio; un comedor o sala de reuniones o una cocina que puede ser mesa de trabajo. Abrir todo el espacio central permitió además a Pachón-Paredes aprovechar las distintas alturas del techo original creando una división imaginaria en el espacio.


Economía de medios
Alrededor de la zona central se configuran los dos dormitorios y los baños separados por paneles de madera. Los paneles ocultan puertas, estanterías y soluciones de almacenaje. Otro de los retos del proyecto fue la limitación económica. Para adaptarse a esta limitación Pachón-Paredes han recurrido a sistemas de puertas abatibles de madera o al hormigón pulido en el suelo.



Non-Binary Space: Elementos hechos a medida con distintas funciones
En Non-Binary Space de Pachón-Paredes el mobiliario, los objetos, materiales y los detalles constructivos se configuraron también como no binarios. Se diseñaron elementos hechos a medida con distintas funciones, como la isla de la cocina, que es simultáneamente una mesa de trabajo. También se configuró el espacio con soluciones de almacenaje que ocultan y camuflan los distintos elementos para los distintos usos que se le puede dar al espacio. Los electrodomésticos, material de oficina o espalderas que se encuentran integrados en los paneles.


Recuperar los materiales de la arquitectura original de la vivienda.
Para respetar la esencia del edificio, los arquitectos Pachón-Paredes han recuperado los materiales de la arquitectura original de la vivienda. Desde la iluminación hasta las instalaciones, ventanas, suelo, paredes o el techo. Las texturas de las paredes y su construcción no dejan claro si son paramentos, panelados, puertas, o armarios, creando un juego visual en el espacio. Con Non-Binary Space el estudio ha logrado un proyecto dinámico, creativo, polivalente y fresco en el que se aprovechan tanto las vistas como la iluminación desde cualquier estancia.
–
Studio Pachón-Paredes
www.pachonparedes.com
Fotos: Luis Asín
—

Non Binary Space, planos del proyecto de Studio Pachón-Paredes