
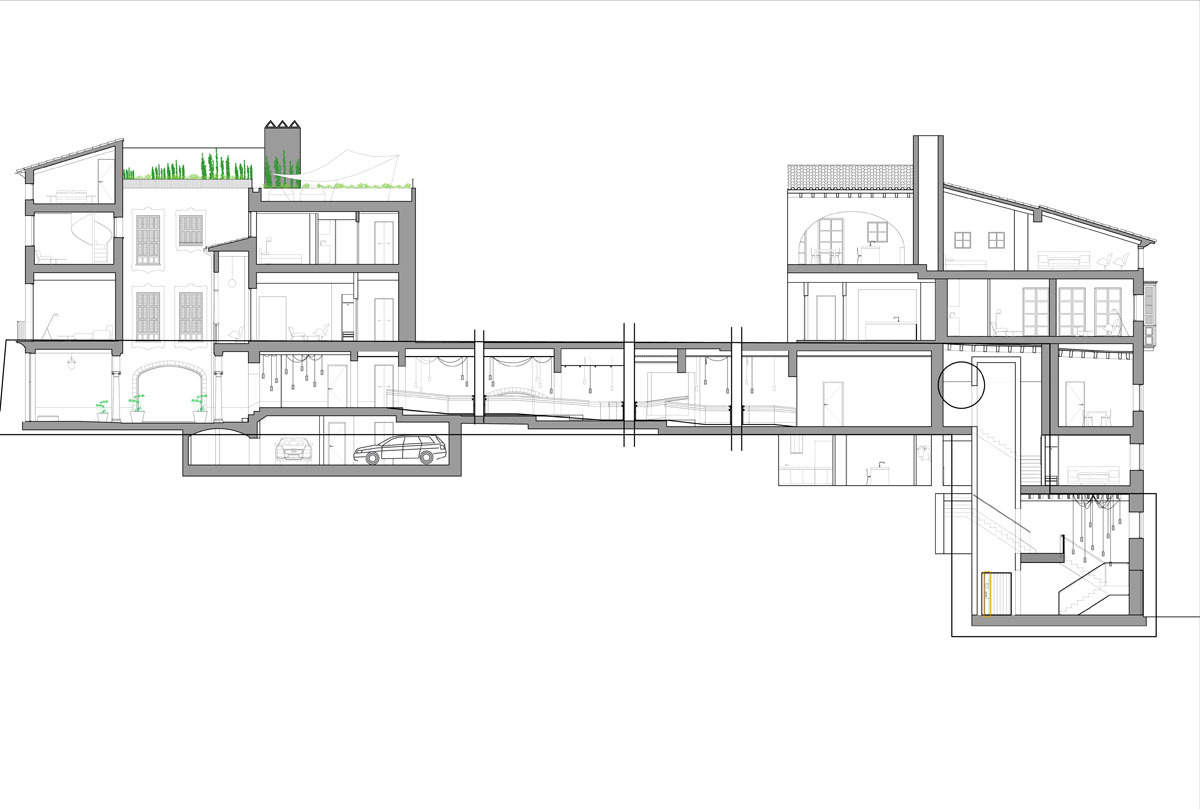
Can Santacilia es un proyecto residencial de 3.300 m2 con 15 viviendas y zonas comunes. Se trata de una cuidadosa reforma de dos edificios, situados en el corazón del casco antiguo de Palma de Mallorca, liderada por el estudio OHLAB.
El origen de las construcciones intervenidas por el grupo OHLAB se remonta al siglo XII o XIII. Desde entonces, los edificios han sufrido diversas modificaciones y se encontraban muy desvirtuados. Así pues, el primer reto pasaba por descubrir los principales espacios arquitectónicos de Can Santacilia y actualizarlos conforme al siglo XXI. El resultado es una única edificación que basa su singularidad en la recuperación de la esencia histórica y en el compromiso de contemporaneidad. Sin olvidar los distintos parámetros de sostenibilidad con los que cuenta. Una reestructuración 360º.

Origen de Can Santacilia
El origen de las construcciones intervenidas por el grupo OHLAB se remonta al siglo XII o XIII. Aunque el edificio visible desde la plaza Tagamanent aparece registrado en los archivos de la ciudad en el año 1576 con el nombre de Can Santacilia.

Desde entonces, los edificios sufrieron modificaciones. Lo que implica que el estado existente previo al proyecto de OHLAB corresponde al siglo XVII, con una reforma posterior del siglo XVIII. Además, las dos construcciones que conforman Can Santacilia sufrieron alteraciones durante el siglo XX encaminadas a la división y conversión en varias viviendas, quedando muy cambiadas respecto a su forma original.

Edificios desvirtuados
El patio principal de Can Santacilia no se conservaba en buen estado. Pero presentaba una estructura que merecía ser rehabilitada y su fachada hacia la plaza conservaba parte de la decoración del siglo XVIII. En definitiva, aunque los edificios examinados por el estudio OHLAB tenían una historia de más de 400 años, se encontraban en gran medida transformados y desvirtuados.



Desafíos a resolver
El primer reto de OHLAB era el de la responsabilidad histórica. Que pasaba por la investigación de las diferentes intervenciones a lo largo del tiempo para descubrir, recuperar y poner en valor los principales elementos y espacios arquitectónicos de Can Santacilia. No se trataba de borrar y esconder las alteraciones que habían ocurrido a lo largo de la historia para recuperar un pasado ideal que no se podía conocer con exactitud. Sino más bien de descubrir diferentes etapas reconociendo los elementos de más peso en cada una de ellas.

Para conseguir hacer esta operación eficiente y que los edificios de Can Santacilia volvieran a integrarse en la actividad de la ciudad, el grupo OHLAB decidió actualizar sus espacios y su uso para el siglo XXI.

Por un lado, se requería un único edificio de viviendas modernas, cómodas y con todos los servicios e instalaciones acorde a un estilo de vida contemporáneo. Por otro, se observó una estructura compleja y compartimentada, difícil de acondicionar. Con una fachada y un volumen del siglo XVII, protegida, extremadamente rígida y complicada de modificar.


Compromiso de contemporaneidad
El proyecto de reforma de OHLAB aprovecha la complejidad de los edificios existentes en Can Santacilia como potencial para generar espacios inesperados. La intervención resuelve cada vivienda con una distribución y unas soluciones individualizadas que, junto a las zonas comunes y conexiones, conforman la unión de ambos edificios. El resultado es una única edificación que basa su singularidad en la recuperación de la esencia histórica y en el compromiso de contemporaneidad.



Recuperación del estudio OHLAB
El proyecto del grupo OHLAB recupera el patio de entrada de Can Santacilia, que había quedado desvirtuado en las reformas del último siglo. Devolviendo el antiguo esplendor de este elemento tan arraigado en la tipología de viviendas nobles del casco antiguo de la ciudad de Palma. De hecho, el patio se convierte en la entrada principal y corazón del edificio, abriéndose hacia las terrazas ajardinadas y zonas comunitarias. Destacando un gimnasio y una piscina interior con spa, que se abre directamente a dicho patio.

Además, en Can Santacilia se ha recuperado un segundo patio interior como jardín para una de las viviendas y cinco terrazas en las azoteas para diferentes viviendas desde las que se pueden disfrutar las vistas de la ciudad.
Selección de materiales
En Can Santacilia se ha prestado especial atención a la selección de materiales nobles, locales, enfatizando la historia del edificio y la esencia mediterránea. Así, una paleta simple de componentes naturales abarca todo el proyecto del estudio OHLAB, combinando la restauración de elementos históricos como carpinterías de madera, piezas estructurales de piedra y madera, molduras de yeso y madera, artesonados de madera, revestimientos de mortero y cal, suelos cerámicos de piedra y de madera y cerrajería de forja.

Junto a estas referencias naturales, contrasta una cuidadosa selección de componentes de diseño como piezas de bronce envejecido, piedras locales, paños de espejo, detalles porcelánicos y textiles locales de lino y algodón.

Parámetros de sostenibilidad
A pesar de las restricciones constructivas que implican una reforma histórica en un edificio protegido, el proyecto del estudio OHLAB ha sido diseñado desde el inicio con parámetros de sostenibilidad.

Con el fin de aumentar al máximo su eficiencia energética, incrementando el aislamiento térmico, cuidando los puentes térmicos en toda su envolvente y utilizando un eficiente sistema centralizado de climatización.

Ficha técnica de Can Santacilia
Arquitectura y diseño interior: OHLAB / oliver hernaiz architecture lab
Equipo OHLAB: Paloma Hernaiz, Jaime Oliver with Rebeca Lavín, Robin Harloff, Maria Bruna Pisciotta, Mercé Solar, Luis Quiles, Silvia Morais, Ángela Suárez, Wiktoria Ginter, Camila Ospina, Pedro Rodríguez, Laura Colomer, Eusebiu Spac, Agustín Verdejo.
Edificio finalizado en 2022
Aparejador: Jorge Ramón
Consultores de ingeniería: AMM Technical group
Ingería de instalaciones: AMM Technical group
Diseño de cocinas: Espacio Home Design
13 de diciembre de 2022 a las 14:40
[…] La revista NEO2 ha publicado nuestro proyecto Can Santacilia en su web, destacando la esencia histó… […]