Somni: un restaurante para 10 personas“Para disfrutar de una experiencia gastronómica, ¿cuál sería el sueño ideal? Posiblemente que un reputado chef te invite a su casa, te deje entrar en su cocina y comience a cocinar para ti, delante tuyo. Este es el concepto esencial del diseño interior de Somni («sueño» en catalán), recrear la cocina de Aitor Zabala en un espacio mágico, un pequeño salón para apenas diez comensales.

Somni: el restaurante de Aitor Zabala para 10 personas

Llegar a este lugar, situado dentro de otro restaurante, Bazaar, no es fácil, hay que saber qué puerta abrir. Una vez dentro, el espacio te recibe cálidamente, en un primer espacio envolvente, sin ángulos ni esquinas. Donde suelo, pared y techo crean un bucle monomatérico con una cinta continua de listones de madera.
Imagen superior: vista del restaurante Somni

Somni: un restaurante para 10 personas

Imagen superior: vista del restaurante Somni

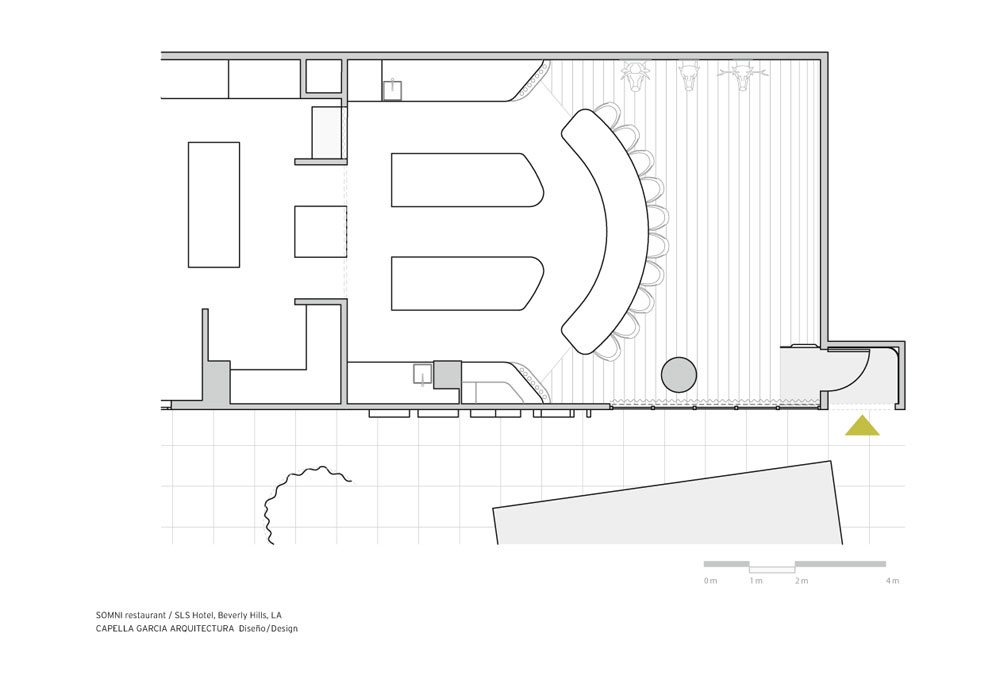
Como en una especie de altar ritual, la única mesa que hay se curva para acercar los comensales y dirigirlos visualmente hacia la cocina. De este modo van a poder vivir de forma muy cercana todo el proceso de cocción de los alimentos y preparación de los platos. Para ello es fundamental estar al mismo nivel del sobre de la cocina. Confortablemente sentados, podrán disfrutar del espectáculo, una intensa y milimetrada coreografía donde los cocineros —tantos como comensales—, van a ir desvelando un repertorio con decenas de degustaciones. Una gran cúpula dorada sobre la zona de emplatado focaliza la actividad de los cocineros, convirtiendo el espacio en una especie de escenario teatral.

Somni: un restaurante para 10 personas

Imagen superior: vista del restaurante Somni

Somni apela a todos los sentidos: la vista en primer plano, con colores neutros y acogedores. El murmullo sonoro de cocciones, cortes, y emplatados; el tacto de los materiales nobles y del propio alimento; los aromas que van llegando al olfato. Y por supuesto el sabor, el sentido del gusto, origen y final de toda la representación.

Somni: un restaurante para 10 personas

Imagen superior: planta del restaurante Somni

Sobre la pared del salón, revestida de cerámica pétrea, cuelga obra del artista español Okuda San Miguel, tres bustos de animales geometrizados y coloreados, que aportan el contraste rupturista dentro de un espacio apacible y cromáticamente neutro. Es el toque canalla, achispado, atrevido, propio de la cocina de vanguardia que Aitor y José Andrés suelen dar a sus creaciones

Un diseño sobrio, funcional y cálido, con ese punto humanista y organicista del diseño español. Donde finalmente siempre asoma un toque de surrealismo y locura, y la pasión se impone a la estricta funcionalidad.”

Un espacio único, como de sueño, para un experiencia única y festiva.”

Texto: Capella Garcia Arquitectura

 

——————————-

Somni restaurante
Diseño: Juli Capella, Miquel Garcia – Capella Garcia Arquitectura / www.capellagarcia.com
Localización: SLS Hotel, Beverly Hills, LA (EE.UU.)
Superficie: 85 m2
Cliente: Think Food Group – José Andrés / Chef Aitor Zabala
Fecha: Marzo 2018
Fotografías: Jill Paider

————-

 

Listado de materiales y FF&E

Pavimentos

• Pavimento de roble modelo Antique Ivory, de Teka Hardwood Flooring.
• Área de trabajo: pavimento cerámico modelo Aston Gris Antideslizante, de Vives.

Revestimientos

• Pared curva y continuación de falso techo: madera de roble, modelo Antique Ivory, de Teka Hardwood Flooring.
• Paredes y base de la mesa: revestimiento de cuarzo ultracompacto de gran formato, modelo Fiord de Dekton, Cosentino.
• Columna circular: revestimiento cerámico modelo RB809 blanco, de Viuva Lamego.
• Pared vestíbulo de entrada: Espejos biselados en color dorado, de Antique Mirror.

Barras

• Encimera de la mesa: madera de roble natural.
• Encimeras de las mesas de trabajo: cuarzo modelo Kokoura F1-9117 Satin, de Avonite Surfaces.
• Base de las mesas de trabajo y muebles de apoyo: modelo Blond Echo, acabado SoftGrain, de Wilsonart.

Lámparas

• Lámparas de suspensión sobre la mesa: Slend negra, modelos 01, 02, 03 de Bover.
• Lámpara de suspensión lineal sobre la encimera de trabajo: modelo Glide Wood, de Edgelighting.

Asientos
• Taburetes modelo Albert One, estructura en roble natural y tapizados en tela INCA 01 color blanco, de Accento.

Cortinas

• En la cristalera: cortina modelo 8038.04, de Vescom.
• Área de trabajo, sobre tanque de peces: cortina modelo Halfdrop Marrón 20206, de Kriska Decor.

Campana decorativa

• Realizada en chapa de aluminio anodizado, interior con efecto amartillado de color bronce y exterior pintado en color antracita.

Obra artística

• Cabezas de toro, vaca y ciervo colgadas en la pared. Esculturas de fibra de vidrio pintadas de Okuda San Miguel.