
El arquitecto de interiores Bruno Lavedan escucha el pasado para reinterpretar el presente. Su reforma integral en un modesto ático de un edificio obrero del Madrid de los 70 conjuga elementos que aluden al origen humilde de la vivienda con las necesidades de su nuevo propietario.
El concepto del proyecto es una reinterpretación del estilo arquitectónico de edificios obreros o populares de los años 70 en Madrid. Materiales como el cemento, el hormigón visto, el solado de barro o los azulejos de formato pequeño se incorporan al interior de la vivienda junto a algunos detalles constructivos y objetos de diseño retro. Con este gesto, el diseñador Bruno Lavedan rinde un sencillo y hermoso homenaje al carácter y el pasado del edificio y transforman este ático para un joven soltero en una vivienda contemporánea.

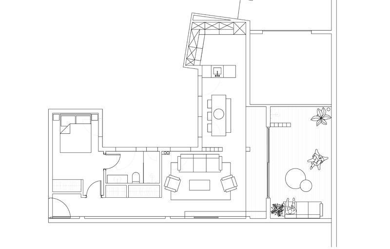
Una planta estrecha y alargada, 70 m de superficie y una consigna: ampliar al máximo la zona social. La propuesta del estudio de Bruno Lavedan ha tenido que pasar inevitablemente por actualizar la distribución tradicional de los espacios. Salón comedor y cocina comparten ahora una moderna y holgada zona de día con vistas a la terraza, para dejar oculto, tras unos frentes de armarios de altura completa y puertas enrasadas, el acceso a la zona privada.


La incorporación de la terraza al salón viene a rematar la premisa de este proyecto. El sello de arquitectura de interiores Bruno Lavedan logra potenciar esa sensación de ambiente abierto gracias a la perfilería oculta o ausencia de marcos en la gran puerta corredera de vidrio que une terraza y salón. Las pequeñas piezas de barro artesanal envejecidas que forman el pavimento de la terraza entran en el interior para dar también continuidad a ambos espacios en dos niveles.

Ayudan también a incrementar la sensación de amplitud el solado continuo de cemento pulido, utilizado en casi todas las estancias, y una mayor altura de techo, lograda al dejar vistas las instalaciones de la climatización. Junto a ellas, las vigas y los pilares de hormigón conforman un elemento decorativo más.

La luz es otro elemento importante del proyecto de este joven Diplomado en Diseño de interiores y especializado en infoarquitectura 3D. Bruno Lavedan incorpora luz natural mediante la gran puerta corredera de vidrio del salón, que se tamiza a conveniencia mediante cortinas de lamas verticales blancas. La luz artificial, escogida también por el diseñador, acentúa aquello que se quiere destacar y es regulable en la mayoría de estancias.



Nos gustan los sutiles guiños setenteros con los que Bruno Lavedan alude al origen de la vivienda: la celosía de suelo a techo formada por ladrillos de barro de círculos vacíos en blanco mate que deja antrever el salón y deja pasar la luz; los tiradores de los armarios de la cocina en forma de hendidura circular; las baldosas cuadradas pequeñas en un tono azul intenso de la pared de la ducha y la luminaria redonda estilo años 70 sobre el gran espejo rectangular de cantos redondeados.


Marcas usadas en el proyecto
Muebles cocina de Ikea customizados con Cubro. Encimera de roble natural. www.cubrodesign.com
Solado de piezas de barro hecho a mano en Málaga. Piezas de 10x10cm acabado blanco antiguo con textura antique. De Todobarro www.todobarro.com
Puertas de roble natural de altura total (suelo a techo), enrasadas y con bisagras ocultas. Armarios lacados en blanco y en roble natural con puertas de altura total. Rodapié de 15cm de altura y canto recto lacado en blanco mate. De Uecko www.uecko.com
Manillas de puerta y pomos de armarios de formani serie one de Piet Boon en color negro mate. De Formani wwww.formani.com
Ventanas de aluminio de hoja oculta, modelo Cor Vision corredera para la ventana de salida a la terraza. De Cortizo www.cortizo.com
Ladrillos para celosías, modelo Startit y azulejo blanco y azul de 10×10 para el baño. De Cerámica Ferres www.ceramicaferres.com
Mueble de baño en roble natural y encimera de solid surface. De Codis www.codisbath.com
Apliques lineales de salón (salida a terraza). De D-Luz www.d-luz.com
Focos de superficie regulables color negro mate. De Modular www.supermodular.com
Focos empotrables color blanco modelo Tolva S. De Nexia www.nexia.es
——
Fotografías: Juan Francisco Gómez | @jf.replica