
Casa Luna es el proyecto más personal del estudio chileno Pezo von Ellrichshausen. Emplazado en Santa Lucía Alto, Chile, el edificio está realizado a partir de 12 bloques de hormigón. Casa Luna es su propia residencia pero también una fortaleza, un museo, un espacio creativo, o todo a la vez…
Casa Luna es el proyecto más personal de los arquitectos Mauricio Pezo y Sofía von Ellrichshausen. Finalizada en 2022, coincidiendo con la pandemia, Casa Luna es su propia residencia de los Andes pero también es un espacio híbrido que engloba muchas funciones: hogar, taller, fortaleza, museo o espacio creativo con un formato conceptual, híbrido y brutalista. El edificio ocupa 2.400m2 en una finca de 120 hectáreas, un proyecto único en el que la arquitectura se fusiona con la naturaleza y el entorno. Os mostramos esta vivienda-fortaleza situada a los pies de la cordillera de los Andes.
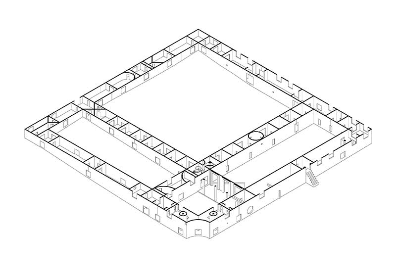
12 bloques de hormigón para una vivienda-fortaleza
Casa Luna toma las dimensiones de un monasterio y la forma de un claustro. La construcción está formada por 12 bloques con distintas formas: unos rectangulares, otros en forma de “T” y otros en forma de “L”. Los bloques están unidos por juntas sísmicas visibles de 5cm que coinciden con los espacios exteriores o patios, creando así la división física casi imperceptible que buscaban los arquitectos. El edificio es su propia residencia, pero también un espacio abierto sin usos concretos. “Luna es casa en cuanto que es un lugar para vivir, y todo lo demás en tanto a posibilidad. Lo concebimos como un lugar amplio, exageradamente amplio, para admitir otras funciones que exceden lo doméstico”, nos cuenta Sofía. “Nuestro trabajo tiene una naturaleza muy amplia. Aunque hemos sido formados como arquitectos, nuestra producción explora otros caminos desde la poesía a la filosofía, la pintura y la escultura o el diseño de muebles y jardines. Por ello entendimos este lugar como una marco de acción, un campo de juego”, nos explican desde Pezo Von Ellrichshausen.



Una estructura para enmarcar la naturaleza
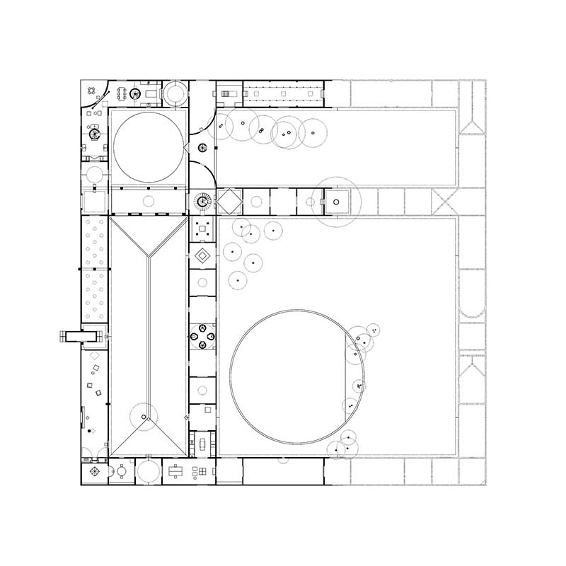
Pezo Von Ellrichshausen plantearon el edificio con una planta cuadrada. Esta está dividida por una cruz asimétrica que enmarca una zona natural autóctona. La planta integra distintas estancias en el perímetro y en el núcleo que se despliegan horizontalmente en torno a cuatro patios. El primero, alargado, sigue el terreno natural junto con el amanecer y el atardecer. El segundo, también alargado, está orientado al norte y es totalmente plano, con una corriente de agua terminada en forma triangular y un avellano. El tercero tiene forma cuadrada y un jardín circular de flores salvajes. El último patio, que triplica el tamaño de los demás, integra un estanque y árboles centenarios. Es este último, el más grande, el que da lugar a su nombre, “Luna”, ya que su tamaño equivale al de una plaza de toros conocida como “medialuna” en la tradición rural chilena.

Aberturas en fachadas y techos
Casa Luna está marcada por grandes huecos en múltiples direcciones de distintas formas y tamaños que enmarcan el paisaje y convierten el entorno en parte de la belleza del conjunto. Son estas las que definen el diseño del conjunto. “El mundo natural, vegetal, animal y todo lo orgánico, ha sido lo más delicado de cuidar y, a la vez, lo más sencillo de abandonar a su suerte. En eso, y con toda la paciencia que requiere situarse al margen, hemos visto cómo la flora nativa ha comenzado a recuperar su protagonismo”, comenta Sofía. Para respetar la extensión horizontal de su cubierta, los arquitectos tuvieron que sortear los desniveles naturales del terreno creando bloques de una planta y otros de dos. Así su estructura queda definida también por el entorno natural.



Espacios abiertos y versátiles
En el interior hay una tenue línea de división funcional. Los espacios son versátiles: hay algunos para residir, otros para trabajar y otros son espacios libres para poder desarrollar la creatividad -además de la arquitectura sus aficiones son amantes de la pintura y la botánica-. “Para nosotros es más interesante pensar una forma de vida, sin distinción entre contenedor y contenido, y sus posibles extensiones significativas o simbólicas. A veces las funciones siguen las formas, otras lo opuesto”, aclaran los arquitectos. Los interiores tienen diversos tratamientos desde el blanco puro hasta el negro marfil, pero también matices de grises verdosos, azulados, violetas o marrones. “Cada habitación tiene un carácter único pero siempre en consonancia con su entorno, tanto el natural como el construido, por ejemplo, una habitación que es sólo para un fogón central. Sus muros están ahumados con un hollín aterciopelado muy delicado, un tono inseparable de su perfume”, nos explica Sofía. Otros espacios están pintados en tonos oscuros para dar calidez, o totalmente blancos para aportar creatividad y luz. Algunos se dejan puros, para resaltar la belleza del conjunto.


Hormigón, vidrio y madera
La aparente sencillez del conjunto se refleja también en los materiales recurrentes en toda la vivienda: hormigón, madera reciclada y vidrio. Todos los materiales utilizados son de cercanía y sostenibles, resistentes al tiempo y al clima. Las zonas de permanencia -más pensadas para residir- están acondicionadas con un muro de madera. También se instaló aislamiento térmico en el hormigón, ventanas térmicas y calefacción. En las zonas comunes todos los muebles son diseño de los arquitectos, también realizados en vidrio, madera y metal. Los huecos de las fachadas y techos iluminan el interior, resaltando algunos rincones y delimitan los usos. Las obras de sus paredes son de los arquitectos, sin embargo, como nos cuentan Pezo y Sofía: “las que las atraviesan no lo son”. Casa Luna es un proyecto único que une sostenibilidad con diseño, creatividad y poesía todo en uno. Un refugio en el que la arquitectura se fusiona con la naturaleza, el espacio y la luz.
—
www.pezo.cl
—

