
El estudio de arquitectura Pachón-Paredes ha completado la reforma de la tercera vivienda de su serie Non-Binary Cross-Space en el barrio de Pacífico de Madrid.
La reforma de esta vivienda surge de una práctica tan experimental como sistemática. Y es que Luis G. Pachón e Inés García de Paredes han estado trabajando, desde que fundaron su estudio en 2020, en torno a dos líneas de investigación paralelas que van más allá de lo convencional: Non-Binary y Cross-Space, definiendo “un proceso de trabajo que está siempre vivo”, afirma Luis G. Pachón.

Pachón-Paredes da forma a la pulsión doméstica del presente con una arquitectura de carácter neutro y flexible, casi invisible. “Hoy en día, las estructuras familiares son mucho más diversas y libres. Y por eso, la arquitectura debería tener cierta capacidad de ductilidad, de volver a un estado, para que un piso pueda admitir a distintas familias y usos a lo largo del tiempo. Creemos que, como arquitectos, tenemos la responsabilidad de intentar condicionar los espacios lo menos posible para que sean los usuarios los que acaben colonizándolos a su manera. No solo viviendas, sino proyectos de mayor escala”, explica Pachón.

Los espacios Non-Binary de Pachón-Paredes
A través de esta línea de investigación los arquitectos han diferenciado dos tipos de espacios. Denominan binarios a los espacios definidos, y no binarios, a los espacios indefinidos. “Empezamos a usar el término no binario porque nos dimos cuenta de que los proyectos que estábamos haciendo en los últimos años, sobre todo los domésticos, guardaban una cualidad de indefinición. Es decir, que no existe una definición de esto es el comedor o esto es la cocina, sino que están diseñados para que sean los usuarios, ahora unos y en un futuro otros, los que se apropien del espacio con sus muebles, sus objetos y su manera de ser”, describe Pachón.


La estrategia Cross-Space
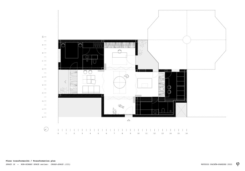
Cross-space es la estrategia de intervención con la que los arquitectos investigan “cómo acometer de forma económica las distintas estructuras en base a su naturaleza arquitectónica. Cada vez se está concibiendo más como un libro de acción, un manual de instrucciones”, describe Pachón. Igual que en los dos proyectos anteriores, en esta tercera reforma de vivienda los arquitectos han eliminado su distribución compartimentada, propia de la segunda mitad del siglo XX. La idea es dejar al descubierto su retícula estructural de pilares y vigas de hormigón y organizar este nuevo interior con un espacio abierto central en forma de cruz, que constituye el vacío indefinido del cross-space, “de uso libre y dinámico. Además, disfruta de distintas orientaciones y tiene ventilación cruzada”, detalla Pachón. En cambio, en los límites del cross-space, se integran los espacios definidos.


Non-Binary Cross-Space (III)
El proyecto de reforma Non-Binary Cross-Space (III) se adapta actualmente al abanico de necesidades de una pareja. Ambos teletrabajan, son amantes de la cocina y ella, además, imparte clases de yoga. Caracterizado por su versatilidad, el espacio central del cross-space “puede pasar de ser una oficina o una cocina para convertirse, de repente, en una zona donde dar clase de yoga sin necesidad de que se aprecie que es una casa”, cuenta Pachón. Los arquitectos han incorporado también un panel de espejos móvil, que permite abrir y cerrar el espacio para conseguir una atmósfera más o menos privada.

Por el contrario, el perímetro del cross-space que “clásicamente podría ser una pared o un tabique, está equipado con una infraestructura técnica continua, que da servicio a las actividades que puedan tener lugar en el espacio indefinido central”, explica Pachón. Una infraestructura técnica de almacenaje pensada para alojar los electrodomésticos de la cocina, los equipos de oficina o las instalaciones, y que actúa a su vez como “elemento divisor entre el espacio binario y no binario”, añade Pachón. En este proyecto, los espacios binarios son los dos dormitorios, los dos baños y las dos terrazas. Y el no binario es esa gran zona diáfana central, que conecta con la puerta de entrada de la vivienda y puede ser utilizada de múltiples maneras.

Pachón-Paredes apuesta por materiales naturales y neutros
Los arquitectos seleccionan siempre materiales que sean “lo más universales posible. No nos gusta condicionar el espacio a la estética. Somos partidarios de que sean las personas que vayan a habitar ese espacio, las que lo hagan suyo. Al final, lo bonito es que todos los materiales guarden una neutralidad”, afirma Pachón. En esta vivienda, tiene especial protagonismo la termoarcilla pintada de blanco. Los arquitectos la han elegido por ser “muy económica, transpirable y salubre. Nos ha permitido generar tabiques de una manera muy rápida, que son más consistentes que los de pladur”, detalla. Y para el pavimento continuo que demandaban los clientes, han optado por “experimentar con una mezcla de cales para crear un suelo natural, con textura y poco espesor”, precisa Pachón.



La nota de calidez la introduce la madera de roble. Un material natural que aporta unidad al espacio, extendiéndose por las puertas y los armarios, o utilizándose para enmarcar la terraza y amueblar la entrada principal con un colgador de abrigos a modo de rocódromo. Y es que, al final, todos los elementos de esta arquitectura participan en la construcción de una identidad ambigua que no compromete al espacio. Como resume Pachón: “La máxima del estudio es llevar al límite la indefinición del volumen percibido para que sean los propios usuarios quienes decidan cómo quieren colonizarlo”.

—–
Créditos del proyecto Non-Binary Cross-Space (III)
Arquitectos: PACHÓN–PAREDES (Luis G. Pachón e Inés García de Paredes)
Colaboradores: Jon Aparicio (proyecto) / Dani Delgado y Benedetta Conforti (post-documentación)
Promotor/Cliente: Adrián & Carmen
Superficie construida: 110 m²
Constructora: Vistto Estudio (jefe de obra: José María Rueda Romero)
Fotografía: Luis Asín
Carpintería y mobiliario: Pachón–Paredes + Pedro&Alejandro