
Port de la Selva es un pequeño asentamiento litoral en la parte más septentrional de la Costa Brava. En este entorno idílico los arquitectos Marià Castelló y José Antonio Molina han diseñado su último proyecto para una familia de cuatro. Una vivienda formada por dos grandes volúmenes de hormigón comunicados entre sí que se integra en el paisaje para pasar casi desapercibida.
La intervención se ubica en el entorno natural de la ladera norte Puig Gros (Lérida), un pequeño promontorio que envuelve y protege el puerto del pueblo. La parcela estaba ubicada en una zona de gran pendiente hacia el mar con una geología de origen volcánico. Su clima mediterráneo en ocasiones se torna extremo debido a los fuertes vientos de norte -tramontana- que azotan la costa. De ahí que los arquitectos hayan creado una vivienda-fortaleza formada por dos grandes volúmenes de hormigón, que sin embargo han logrado integrar en el entorno gracias a sus materiales y a una arquitectura minimalista. Utilizando el hormigón como material principal, un diseño de líneas geométricas y aprovechando los materiales del entorno, han diseñado una vivienda-refugio sostenible única y un nuevo estilo de arquitectura mediterránea mimetizada con en el entorno.



Vivienda en Port de la Selva, proyecto de Marià Castelló y José Antonio Molina.
Una vivienda de hormigón
La vivienda está formada por dos volúmenes de hormigón comunicados entre sí. Esta configuración ha permitido a Marià Castelló crear una vivienda resistente al clima exterior y sostenible. El hormigón es el material predominante tanto en exterior como en el interior. Éste se funde con el sustrato rocoso de la zona y gracias a su resistencia y a que requiere un menor mantenimiento, se convierte en la opción más duradera y por lo tanto la más sostenible. Para una mayor integración en el entorno, los techos de los dos volúmenes se han recubierto con grava de pórfido, un material existente en el terreno que recuperaron de la excavación.


Vivienda en Port de la Selva, proyecto de Marià Castelló y José Antonio Molina.
El reto: una vivienda integrada y sostenible
El reto principal del proyecto era crear una vivienda integrada en el paisaje y sortear las dificultades de su topografía. La vivienda tiene dos niveles: el inferior incrustado en el lecho rocoso y el superior, fragmentado a su vez en dos volúmenes. Estas dos estrategias -la incrustación de los volúmenes en el terreno y la separación de los dos volúmenes- permiten reducir el volumen aparente de la intervención e integrarla totalmente en el paisaje. Se proyectaron además distintos patios que aportan calidez, iluminación y ventilación a toda la vivienda. En cuanto a los materiales, en el interior se combinó el hormigón con revestimientos de madera de roble para crear un entorno más cálido. Tanto en las carpinterías exteriores como en las interiores y en el mobiliario a medida, los arquitectos eligieron la madera de roble que contrasta con la pureza del hormigón.


Vivienda en Port de la Selva, proyecto de Marià Castelló y José Antonio Molina.
Espectaculares vistas panorámicas
Otro de los objetivos del proyecto era aprovechar las visuales panorámicas abriendo la planta alta al paisaje y horizonte marino. Para ello, los dos volúmenes están comunicados mediante una gran cristalera que también actúa como pantalla contra el viento y para resguardar la vivienda del frío y de las condiciones climáticas. El pasillo se convierte en una ventana al exterior. En la planta alta, todas las estancias están abiertas al exterior tanto por grandes ventanales como por puertas acristaladas panorámicas horizontales y verticales.


Vivienda en Port de la Selva, proyecto de Marià Castelló y José Antonio Molina.
En el interior se proyectó un juego de aberturas con distintas alturas para aprovechar las vistas, tanto al cielo como al mar, desde cualquier lugar de la planta abriendo así la casa al exterior aún más y permitiendo el paso de la luz a todo el interior. También se utilizan paneles de vidrio y puertas correderas que se abren por completo para crear una comunicación entre el exterior y el interior.


Vivienda en Port de la Selva, proyecto de Marià Castelló y José Antonio Molina.
En el nivel inferior, con dos dormitorios auxiliares, se crea un diálogo con el exterior mediante el patio y la grava de pórfido. Como en otros proyectos del arquitecto Mariá Castelló, en la nueva vivienda en Port de la Selva ha logrado un proyecto minimalista basado en formas geométricas pero a la vez cálido, contemporáneo y totalmente integrado en el entorno.
—
—

Vivienda en Port de la Selva, proyecto de Marià Castelló y José Antonio Molina.

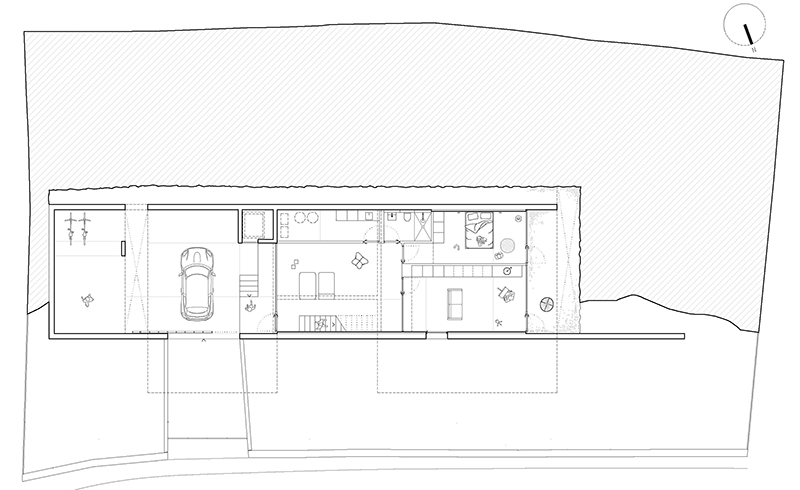
Plano primera planta, vivienda en Port de la Selva, proyecto de Marià Castelló y José Antonio Molina.
Plano planta baja, vivienda en Port de la Selva, proyecto de Marià Castelló y José Antonio Molina.