Nueva elegancia modernista en Praga por Plus One Architects

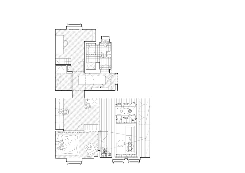
El ingenio de las arquitectas Petra Ciencialová y Kateřina Průchová para reformar un apartamento de 63 m2 aprovechando al máximo el espacio ha sido clave para revalorizar su pequeña escala y realzar la belleza de la arquitectura original, un edificio modernista a las afueras de Praga.

El emergente distrito de Vršovice, en la periferia sureste de Praga, es conocido por sus nuevas concept stores y restaurantes de cocina creativa, instalados en los monumentales edificios modernistas de principios del siglo XX que singularizan la retorcida trama urbana de la zona vieja. Un área tranquila, desde la que se puede ir dando un paseo a los románticos jardines Havlíček, y recorrer este parque de inspiración renacentista italiana por una boscosa ladera con viñedos y bellas vistas de la ciudad. Este es el contexto que define los alrededores del apartamento reformado por las fundadoras de Plus One Architects, con estudio propio en Praga desde 2019.

Nueva elegancia modernista en Praga por Plus One Architects

Nueva elegancia modernista en Praga por Plus One Architects

Los edificios modernistas poseen un encanto ceremonioso. La sensación de opulencia que transmiten sus altos techos de más de tres metros, así como las amplias dimensiones de sus ventanas y puertas, continúa siendo un objeto de deseo. Y las arquitectas no han dudado en ensalzar estas cualidades a la hora de reconstruir por completo el interior del apartamento. Su antigua distribución, excesivamente tabicada, no respondía a las necesidades de sus nuevos propietarios. La joven familia deseaba contar con una habitación de matrimonio y, otra, infantil, organizadas en zonas totalmente independientes. De modo que la propuesta de Plus One Architects estructura el hogar en dos alas. A un lado del recibidor, se encuentran la zona de día y el dormitorio principal; y al otro lado, el dormitorio infantil y el baño. Del diseño original sólo se han mantenido los muros de carga, a fin de poder crear un interior fluido y confortable.

Nueva elegancia modernista en Praga por Plus One Architects

Nueva elegancia modernista en Praga por Plus One Architects

La versatilidad y la ligereza convierten a la madera de abeto en una materia prima excelente para dar forma a múltiples elementos

La madera de abeto cobra un gran protagonismo en la vivienda, unificando toda la intervención. Da forma al mobiliario y los nuevos paramentos interiores (siempre de suelo a techo) y, al mismo tiempo, se convierte en el elemento principal de la decoración. Su tono suave crea una atmósfera delicada, que infunde una sensación de calma y bienestar.

Nueva elegancia modernista en Praga por Plus One Architects

En el recibidor, un panel de madera corredero delimita el armario de la entrada. En la parte superior, asoma una divertida ventana que conecta con la zona de descanso del cuarto infantil, concebida en las alturas a modo de castillete, a la que se accede por una mini escalera. Un recurso original para suplir la falta de metros cuadrados en el dormitorio y poder utilizar el resto del espacio como zona de estudio.

Nueva elegancia modernista en Praga por Plus One Architects

Nueva elegancia modernista en Praga por Plus One Architects

El estar y la cocina están integrados en un mismo espacio diáfano con forma de L, donde la madera también juega un rol principal. Construye el módulo de estantería y armario que recorre de un lado a otro el salón-comedor, así como el acabado del suelo. En contraste con el pavimento del resto de la vivienda, que presenta el color crudo del marmoleo.

Nueva elegancia modernista en Praga por Plus One Architects

Estancias conectadas y superpuestas organizan el hogar de manera práctica y original 

Los paramentos que conforman el perímetro del dormitorio principal son de cristal, enmarcado en la misma madera de abeto. Se trata de una habitación extra añadida entre el salón y la cocina, que las arquitectas han podido incorporar gracias a la abundante luz que pasa a través de las generosas ventanas. La privacidad en la estancia se consigue con las largas cortinas de color neutro que rodean y vuelven opaca la habitación, desde la que visualmente se puede controlar cada rincón de la casa.

Nueva elegancia modernista en Praga por Plus One Architects

Nueva elegancia modernista en Praga por Plus One Architects

La faceta más tecnológica de la vivienda es su sistema de iluminación. Elegido para que quede completamente camuflado en el mobiliario. A excepción de la lámpara suspendida sobre la mesa del comedor, todas las fuentes de luz son invisibles y su intensidad se regula de manera automática según el momento del día.

Nueva elegancia modernista en Praga por Plus One Architects

Nueva elegancia modernista en Praga por Plus One Architects

El blanco es el color compartido por todas las paredes de la casa y se reserva también para el frente de la cocina y los azulejos del baño, conviviendo en armonía con la textura cálida de la madera. El resultado es un apartamento de estilo atemporal, habitado por la sobria paleta que le concede esa elegancia innata.

Nueva elegancia modernista en Praga por Plus One Architects

—–

Créditos de Vršovice Apartment:

Arquitectura: Plus One Architects (Petra Ciencialová + Kateřina Průchová)
Ubicación: Vršovice, Praga, República Checa
Año de finalización: 2022
Superficie útil: 63 m²
Presupuesto: 60.000 €
Colaborador: JanskyDundera (Apartment styling)
Fotografía: Radek Úlehla