
Bajo una cubierta inclinada y con tan solo 30 metros cuadrados, Hilatura Estudio ha realizado una reforma que convierte un antiguo miniático en una vivienda plenamente habitable, destinada al alquiler de larga estancia.
El proyecto de Hilatura Estudio, denominado Eukarya, no adopta el nombre de la célula eucariota por azar, sino por su profunda afinidad: como ella, esta vivienda se construye desde el principio de una máxima eficiencia concentrada en un espacio minúsculo. Una rigurosa organización que cobra especial sentido en su emplazamiento -el Casco Viejo de Bilbao-, dentro de un edificio de larga data y con estructura tradicional, cuya planta original, previa a la reforma, se hallaba compartimentada por tabiques que agravaban la ya reducida superficie.

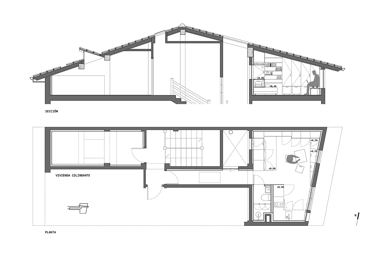
“Fue necesario derribar tabiques para liberar el espacio y lograr una planta diáfana. A pesar de ser un lugar reducido, originalmente estaba excesivamente compartimentado, lo que lo hacía aún menos funcional”, señalan desde Hilatura Estudio. Únicamente el baño se preserva como recinto delimitado, funcionando como núcleo independiente de este miniático.


Un altillo, una cama escondida y soluciones a medida en el miniático
La altura de la previamente mencionada cubierta, que oscila entre 1,80 y 4 metros en su punto más elevado, hizo posible la explotación del volumen en vertical. En esa cota se habilitó un pequeño altillo donde se aloja una segunda cama, mientras que en la planta principal, una cama semioculta se pliega parcialmente para convertirse en sofá.

Una reforma a modo de inversión
El cliente, un particular que compró el inmueble con fines de inversión, optó por mejorar calidades respecto a lo que suele ser habitual. El presupuesto rondó los 1.000 euros por metro cuadrado, incluyendo el diseño completo del mobiliario multifuncional, realizado por Hilatura Estudio y ejecutado por Portela. Pues la estrategia no fue la de añadir más capas, sino desentrañar cada función hasta dar con su forma imprescindible. “El mayor reto fue, sin duda, resolver un programa completo de vivienda en tan pocos metros”, explican desde el despacho, que define el miniático como “una vivienda mínima, pero vital y llena de soluciones funcionales e inteligentes”.

Materiales cálidos y buena climatización
El proyecto se sostiene sobre una economía matérica y una escala cromática deliberadamente neutra. Madera en su expresión más natural, cerámica esmaltada en blanco y puntuales destellos de naranja son los elementos que el interior del miniático. Por su parte, la luz, dispuesta en trazos lineales, contribuye a preservar su claridad.
Paralelamente, se reforzó el aislamiento térmico de la envolvente, lo que permitió reducir drásticamente la demanda energética. “Gracias a esa mejora, el espacio opera con un sistema eléctrico mínimo capaz de ofrecer tanto calefacción como refrigeración”, detallan desde Hilatura Estudio.



El equipo de Hilatura Estudio
Sobre Hilatura Estudio
Hilatura Estudio fue fundado en 2021 por los arquitectos Matteo Cassano (San Giovanni Rotondo, 1982) y Mikel Quintana Astondoa (Bilbao, 1993). Matteo obtuvo su licencia de arquitectura en Roma, mientras que Mikel se formó en la Escuela de Arquitectura de Donostia (UPV/EHU). El equipo lo completan Maialen Muñoa (Anoeta, 2001), interiorista graduada en IDarte Vitoria-Gasteiz, y Eider Barcala (Bilbao, 2003), arquitecta técnica por la Escuela de Arquitectura Técnica de San Sebastián, que se incorporará en septiembre. Desde sus inicios, se ha centrado en el ámbito doméstico, con proyectos que combinan detalle, cercanía y atención al contexto. “No creemos en soluciones estándar, sino en respuestas precisas, hechas a medida”, afirman.
