Te presentamos un proyecto de interiorismo firmado por un joven estudio de arquitectura. Rounded es el nombre de este trabajo realizado en poco más de dos años para un casa ubicada en Madrid. Una estética que utiliza las curvas como eje de unión entre los diferentes espacios de la vivienda. Hablamos con Carolina G. Vives para que nos explique algo más de su último trabajo y también de su estudio.

ROUNDED by CAROLINA GONZÁLEZ VIVES

Imagen superior: Salón

Háblanos de tu último proyecto Rounded
Se ha trabajado con materiales muy distintos. Por un lado con elementos luminosos, metacrilatos blancos o traslúcidos que se convierten en espesores con luz;  por otro superficies de color planas, como los suelos o los muebles de madera, con texturas intencionadamente muy satinadas, muy lisas, que contrastan con un tercer grupo, las piedras, los tejidos y las plantas, que incorporan texturas.

En esta casa no hay espacios secundarios, todos son principales. Los mismos materiales recorren toda la superficie. Esta indefinición y las conexiones entre espacios contiguos a través de puertas plegables permiten un uso muy flexible.

ROUNDED by CAROLINA GONZÁLEZ VIVES

Imagen superior:  Sala de estar y tele (oculta tras los paneles azules)

Un proyecto de interiorismo muy marciano para lo tiempos que corren y para estar en Madrid. ¿Qué tipo de cliente hay detrás de un proyecto como este?¿Qué tipo de briefing te da el cliente? ¿Qué tipo de familia vive ahí?

Un muy buen cliente  .-) En este caso el encargo proviene de una mujer joven con tres niños. Es una persona singular, con una sensibilidad sofisticada. Ambiciosa en la esfera cotidiana, en la vida doméstica. Le gusta disfrutar. Valora  la belleza en lo que le rodea.

En los espacios domésticos sobre todo, es muy importante que se integren las ilusiones personales que se han proyectado, que se adapten con perfección a la forma de vida de cada uno. El trabajo se basa en una conversación continua a lo largo del proceso, se van mezclando las ideas que recibimos con las que nosotros podemos aportar. Esto  muchas veces deriva en una relación de amistad posterior que se prolonga en el tiempo.

ROUNDED by CAROLINA GONZÁLEZ VIVES

Imagen superior: Vestidor y sala de estar pequeña.

¿Cuánto se tarda en finalizar el proyecto?

Los proyectos como este son investigaciones nuevas cada vez,  llevan tiempo, pero tratamos de acortarlo al máximo. En este caso creo que un año, 3 meses de proyecto, y casi 9 de contratación y obra.

ROUNDED by CAROLINA GONZÁLEZ VIVES

Imagen superior: Salón

SOBRE SU ESTUDIO

¿Cuántos sois en el estudio?

El estudio arranca en 2005 como una estructura flexible en la que colaboran profesionales y  especialistas  de distintos ámbitos, lo que nos permite dar una buena respuesta a encargos muy diversos, con una amplitud de escalas que incluye el diseño de espacios pequeños, edificación, espacios exteriores y la propuesta de soluciones urbanas.

ROUNDED by CAROLINA GONZÁLEZ VIVES

Imagen superior: Baño principal

¿Cuáles son tus fuentes de inspiración?

La arquitectura es una práctica que flota sobre un espacio cultural muy heterogéneo. Se mezcla e interfiere con muchos campos. En nuestro caso, el trabajo del estudio se nutre de una investigación continua,  conectada de forma esencial con el ámbito académico. Las escuelas de arquitectura son focos de creatividad y producción de nuevas ideas de enorme valor.   Por otro lado, las conexiones con otros agentes interesados en la producción material son múltiples, tanto desde el diseño y el arte, como con  disciplinas más reflexivas como la filosofía, la sociología o la geografía, que aclaran posiciones sobre la idea de  naturaleza y de cuerpo, o la construcción del espacio urbano.

Nos interesan los ambientes que fuerzan relaciones diferentes, como los ensayos de la Nasa para granjas aeroespaciales por ejemplo.  Son ecosistemas acelerados de baja energía, donde una combinación de plantas y pequeños animales produce materia orgánica y oxígeno suficiente en ciclos cerrados. Estos espacios alteran completamente como entendemos el cuerpo y su relación con las consistencias materiales más próximas, sólidas y gaseosas.

También los oasis tradicionales de las culturas áridas. En estos espacios, las alianzas con el paisaje  y  la incorporación de materiales vivos, como las cubiertas verdes de los palmerales,  alteran las condiciones del aire. La arquitectura rezuma frescor, es un elemento activo que produce una atmosfera nueva.

ROUNDED by CAROLINA GONZÁLEZ VIVES

Imagen superior: Terraza

Para muchos arquitectos el interiorismo es visto como una disciplina menor ¿qué piensas tú?

Hay un interés indudable en el tamaño, en las grandes dimensiones. La construcción de los Teatros del Canal por ejemplo fue muy emocionante. El hormigonado de los patios de butacas o el montaje del peine escénico  fueron operaciones singulares de carácter casi faraónico. Hay una belleza especial en estos grandes movimientos de materia, en la coordinación de tantos factores y personas.

Sin embargo la escala pequeña mantiene íntegras muchas cuestiones esenciales en arquitectura, como la relación con la gravedad y con el peso, la transparencia, el contacto del cuerpo con el entorno material más próximo.  La exposición actual de Luciano Fabro en el MNCARS es un ejemplo fantástico. Nos gusta mucho cuestionar la definición de las consistencias materiales,  diseñar las interferencias con el aire a través de la termodinámica, como  las sensaciones térmicas de calor o frío.

ROUNDED by CAROLINA GONZÁLEZ VIVES

Imagen superior: Cocina

¿Qué piensas de la moda de interiorismos de look vintage?
es decir el 90% de los interiorismos que se hacen ahora mismo.

Bueno, desde Ornamento y delito de Adolf Loss, de 1908, la tendencia hacia el minimalismo de la modernidad ha desterrado la palabra decoración del vocabulario, la ha estigmatizado  se podría decir. Creo que la mirada hacia atrás, revindicando otras referencias, es una respuesta intuitiva muy válida, que demanda otra riqueza para el espacio y otro entusiasmo por la belleza. Además, el interés de la arquitectura es en gran medida acrónico. Hay líneas que conectan edificios como el Palazzo Pitti o el Duomo de Florencia con obras actuales, como  las instalaciones de la Serpentine Gallery en Hyde Park por ejemplo.

ROUNDED by CAROLINA GONZÁLEZ VIVES

Imagen superior izquierda: Entrada al salón desde la cocina. Imagen superior derecha: Baño niños

¿Qué te parece Casa Decor?¿Qué te parece la Feria de Milán?¿Crees que es interesante que haya ferias locales del mueble como la de Valencia o Estocolmo? ¿Crees que es sostenible para los expositores y para los visitantes profesionales el que haya una feria en cada ciudad importante?

Creo que el interés por el diseño es cada vez mayor, pero no es fácil establecer canales de conexión con la sociedad, con un público no especializado.   Ejemplos como los que citas, vuestro mismo trabajo también, creo, son esfuerzos valiosos para  satisfacer esa curiosidad por conocer más, esa necesidad también, de vivir en ambientes con más calidad. En el fondo es una señal de  ambición vital, de sensibilidad.

Estas conexiones son siempre un trabajo a medio plazo, me parece…no podría opinar sobre su viabilidad económica inmediata.

ROUNDED by CAROLINA GONZÁLEZ VIVES

Imagen superior: Salón

¿Cuál crees que es la clave para que un diseño de interior funcione?

Pensar desde la relación con el cuerpo

¿Cuál es tu diseñador de mobiliario favorito que no está muerto?

Me gustan los Bouroullecs, por ejemplo, son muy buenos…

ROUNDED by CAROLINA GONZÁLEZ VIVES

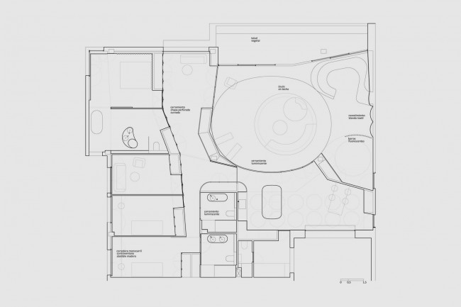
Imagen superior: Planta del proyecto (picha para ampliar)

Más info: www.gonzalezvives.eu
Fotografías: Miguel de Guzmán