
KAL A, el estudio de arquitectura fundado por Miguel Sotos y Sofía Romeo, se ha trasladado al barrio de Guindalera, Madrid. Ahora ocupa un garaje amplio, blanco y diáfano con luz cenital. Lo que fue un taller de coches es ahora Kino, un espacio que materializa su propia filosofía de trabajo.
Cuando hablas con Miguel Sotos y Sofía Romeo disfrutas tanto de sus ideales y principios que, sin querer, te hacen sentir envidia. Defienden que tenemos que intentar asumir hacer las cosas bien. “No hace falta hacerlo maravillosamente bien o, ser increíbles. Vale con hacerlo bien”. Y ellos, lo hacen. Los fundadores de KAL A complementan la arquitectura con la edición y el trabajo de la madera. Son este conjunto de disciplinas las que les dan su singularidad especial. Su editorial Calmo (junto con Carlota Álvarez), es fruto de investigaciones, viajes por el mundo y de absorber distintas culturas. Rodearse de lo que les parece interesante. A partir de ahí, surge todo lo demás.
KAL A Estudio de Arquitectura: Espacio dedicado para el taller de carpintería del arquitecto Miguel Sotos. Foto: Knu Kim
Kino funciona como un laboratorio, como un espacio para crear prototipos donde la arquitectura puede ocupar todo el taller. “La escala del lugar te da la escala de trabajo que puedes desarrollar”, dice Sofía Romeo. Y a su antiguo estudio, ubicado en el barrio de la Morería, le faltaba precisamente eso, la escala. Ahora pueden combinar todas sus vertientes de trabajo sin que ninguna consuma a la otra.



KAL A Estudio de Arquitectura: El espacio diáfano y polivalente de Kino. Fotos: Knu Kim
En KAL A veneran la naturaleza de cada material y dignifican el trabajo manual, lo táctil o lo palpable. Les gusta desarrollar la arquitectura desde su vertiente más cálida y poder permitirse salir del plano digital. Miguel Sotos asienta sus conocimientos básicos de la madera en 2018 cuando viaja a Kyoto para recibir una formación intensiva. De ahí, esos muebles impecables que tienen efecto de tila.




KAL A Estudio de Arquitectura: Miguel Sotos en el desarrollo de algún mueble en su taller de carpintería. Fotos: Knu Kim
Evidentemente, los recursos y conocimientos de KAL-A se vuelcan en el desarrollo de cada idea. Producen unas maquetas de madera de gran escala como parte del proceso constructivo. A través del ensayo y error, manipulan las piezas y consiguen un mayor grado de aproximación con el proyecto. “En el taller se cometen muchos errores, pero aporta muchísimo aprendizaje“.


KAL A Estudio de Arquitectura: Maquetas de madera como parte del proceso creativo. Foto: Knu Kim
Es así como han desarrollado los proyectos en los que trabajan actualmente. Una casa en Madriguera, Segovia y una escuela en Eslovenia que comparten características. Este último proyecto es resultado del primer premio de un concurso, lo desarrollan junto a Ana Jerman, Janja Šušnjar, Maruša Zorec y el paisajista Luka Javornik. Sin embargo, los fundadores de KAL A no quieren mitificar el esfuerzo, pues no siempre se recompensa.
Miguel Sotos y Sofía Romeo tienen planes a largo plazo para Kino. Un espacio amplio y generoso como este, es casi necesario compartirlo con otras personas. Hay muchísima gente con ganas de colaborar, de proponer y de compartir. Perfiles desconocidos, hasta ahora, con valores muy interesantes para aportar. En Kino cabe la arquitectura, la edición y la carpintería, pero también la cerámica, la fotografía, el arte, el diseño o el cine. La idea es que este garaje pueda ser un lugar de eventos, de encuentros y charlas. Generar esa relación entre colectivo que tanto se echa en falta.


KAL A Estudio de Arquitectura: Miguel Sotos y Sofía Romeo trabajan con maquetas de madera para una mayor aproximación al proyecto. Foto: Knu Kim
Así, a lo mejor, los arquitectos aprendemos y empezamos a cuidarnos como profesión. Miguel Sotos termina al dejar esta reflexión pendiente. “Nos sacrificamos mucho por la pasión que tenemos, pero eso no es sano para nadie“.

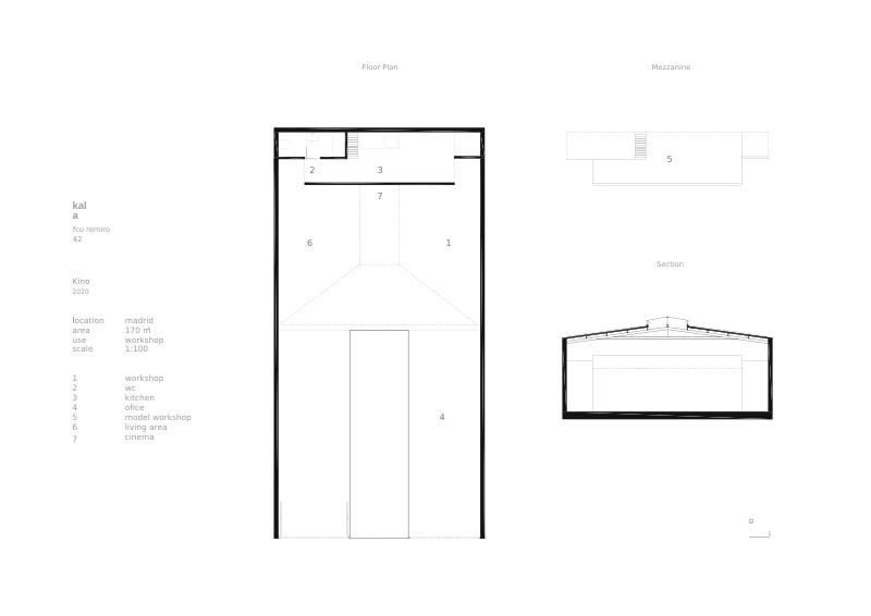
KAL A Estudio Arquitectura: Plano de la planta y sección del proyecto de reforma.
_________________
Web: www.kal-a.com
IG: kal.a_i
Editorial: www.calmo-editions.com
IG: calmo.ed
Fotos: Knu.kim