
Una cafetería que rompe con la imagen esperada de una cafetería, pero no renuncia a lo básico que la define como cafetería. Con esta especie de trabalenguas presentamos Misc Coffee, de StudioAC.
Podemos afirmar que Misc Coffee, al norte de Ossington Avenue (Toronto, Canadá), se inclina hacia una estética industrial que StudioAC construye utilizando paneles verdes translúcidos de FRP (plástico reforzado con fibra de vidrio), un material más asociado a infraestructuras técnicas que a espacios de consumo. En este caso, el estudio los emplea como filtros lumínicos capaces de impregnar el interior con su tonalidad.

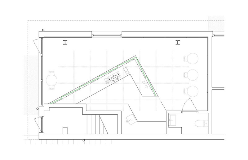
Una barra triangular como protagonista en Misc Coffee
La gran protagonista de Misc Coffee es una barra triangular, pensada para organizar la circulación de clientes y darles la bienvenida desde la entrada. StudioAC instaló encima de esta un dosel geométrico del mismo color y material que se sostiene mediante una estructura de Unistrut al descubierto, evitando todo elemento adicional.




Materialidad al servicio de la luz
El resto del mobiliario adopta un enfoque eminentemente utilitario, evidente en las superficies de acero inoxidable y en las estanterías metálicas, las cuales capturan y proyectan el matiz verdoso del FRP que varía a lo largo del día e intensifican tanto la iluminación natural como la artificial.
Un espacio pequeño con larga respiración
Con una superficie bastante reducida, el diseño recurre a patrones repetitivos, transparencia y geometrías claras para multiplicar la sensación de amplitud. La apuesta de StudioAC no fue decorar más, sino intervenir menos. Según los arquitectos, su idea era “dejar que la luz, el material y el diseño hagan el trabajo”, algo que se percibe en cada rincón del local.




Sobre StudioAC
Fundado en 2015 y con sede en Toronto, StudioAC ha desarrollado una trayectoria vinculada tanto a proyectos residenciales como a intervenciones en espacios comerciales y culturales. La oficina ha sido identificada en distintos listados de estudios destacados dentro de Canadá, además de recibir reconocimientos que valoran su labor. Su línea de trabajo prioriza la claridad formal y la relación entre concepto y ejecución.

—
Ficha técnica
Finalización: 2025
Arquitecto: StudioAC
Equipo de StudioAC: Andrew Hill, Jennifer Kudlats, Ryan Beecroft, Melody Matin, Mohammed Soroor, Sarah Reid
Fotos: Scott Walsh